内蒙古太西煤集团常山多元合金有限公司
年产30×104吨铁合金一期项目
环境影响后评价报告
建设单位:内蒙古太西煤集团常山多元合金有限公司
编制单位:甘肃创新环境科技有限责任公司
二〇二〇年八月
建设单位法人代表: (签字或盖章)
项 目 负 责 人: 杜晓亮
编制单位法人代表: (签字或盖章)
内蒙古太西煤集团常山多元合金有限公司 甘肃创新环境科技有限责任公司
(建设单位) (编制单位)
电话: 电话:0931-4619784
邮编: 邮编:730030
概述1
项目背景1
环境影响后评价的工作过程2
关注的主要环境问题2
环境影响后评价的主要结论2
1总则3
1.1编制依据3
1.2评价因子筛选5
1.3评价标准6
1.4评价工作范围9
1.5环境功能区划11
1.6环境保护目标11
2建设项目过程回顾13
2.1环保手续办理情况13
2.2环保措施落实情况14
2.3环境监测情况20
2.4排污许可制度执行情况21
2.5公众意见收集调查和信息公开情况21
3建设项目工程评价23
3.1基本情况23
3.2工程主要建设内容23
3.2工程主要建设内容24
3.3生产工艺、产污环节及污染因素分析28
3.4污染物产生、治理及排放情况31
3.5工程与现行相关政策符合性分析33
3.6与总量控制、排污许可证衔接情况34
4区域环境质量现状及变化情况评价37
4.1自然环境概况37
4.2建设项目周围区域环境敏感目标变化情况38
4.3建设项目周围区域污染源变化情况38
4.4地下水环境质量变化情况39
4.5地表水质量变化情况42
4.6环境空气质量变化情况42
4.7声环境质量变化情况44
4.8土壤环境质量变化情况47
5环境保护措施有效性评估49
5.1废水处理49
5.2废气治理51
5.3噪声控制措施53
5.4固体废物处置措施53
5.5环境风险防范措施53
6环境影响预测验证55
6.1地表水环境影响预测验证55
6.2大气环境影响预测验证55
6.3地下水环境影响预测验证56
6.4声环境影响预测验证57
6.5固体废物影响验证58
6.6土壤环境影响验证58
7、环境保护补救方案和改进措施59
7.1现有环保问题排查59
7.2环境保护改进措施59
7.3现有环保问题整治措施实施时限60
7.4其他改进建议60
8环境影响后评价结论61
8.1建设项目过程回顾61
8.2建设项目工程评价61
8.3环境质量62
8.4环境保护措施有效性63
8.5环境影响预测验证64
8.6结论及建议66
该项目于2004年11月12日取得《关于内蒙古太西煤集团年产30×104吨铁合金项目立项的环境保护审查意见》内环字[2004]419号;2004年3月包钢集团设计研究院编制了《内蒙古太西煤集团年产30×104吨铁合金项目可行性研究报告》。
2006年12月中国冶金建设集团包头钢铁设计研究总院完成了《内蒙古太西煤集团常山多元合金有限公司年产30×104吨铁合金一期项目环境影响报告书》;2007年6月取得内蒙古自治区环境保护局(内环审〔2007〕98号)《关于内蒙古太西煤集团常山多元合金有限公司年产30×104吨铁合金一期项目环境影响报告书的批复》。
内蒙古太西煤集团常山多元合金有限公司年产30×104吨铁合金项目,于2004年开始建设,分期建设,工程建设符合国家《铁合金行业准入条件》和国家有关法律、法规的规定,符合国家“西部大开发”战略,对内蒙西部地区经济发展具有积极的促进作用。
该工程2004年开工建设,到2005年初完成4×12500kVA铁合金电炉的建设,并已投产运行,到2006年底,另4台12500kVA铁合金电炉已建成,2011年11月内蒙古自治区环境监测中心站编制了《内蒙古太西煤集团常山多元合金有限公司年产30×104吨铁合金一期项目验收监测报告》,2011年11月取得内蒙古自治区环境保护厅文件(内环验〔2011〕123号)《关于内蒙古太西煤集团常山多元合金有限公司年产30×104吨铁合金一期项目(二厂)竣工环境保护验收的意见》。
为贯彻落实《建设项目环境影响后评价管理办法(试行)》(环境保护部令第37号)的要求,内蒙古太西煤集团常山多元合金有限公司决定对其“年产30×104吨铁合金一期项目”开展环境影响后评价工作。本次后评价内容为内蒙古太西煤集团常山多元合金有限公司年产30×104吨铁合金一期项目一分厂建设1#~4#半封闭式铁合金电炉及配套公辅设施,二分厂建设5#~8#半封闭式铁合金电炉及配套公辅设施。
根据《中华人民共和国环境保护法》、《建设项目环境影响后评价管理办法(试行)》(环保部令第37号)等相关法律、法规的有关规定,白银有色集团股份有限公司铜业公司于2020年4月委托我公司承担“内蒙古太西煤集团常山多元合金有限公司年产30×104吨铁合金一期项目”的环境影响后评价工作。接受委托后,我公司立即组织技术人员对本项目进行调查、踏勘和历史资料收集,并进行了必要的环境质量现状和污染源监测,根据本项目实际运行情况,复核了项目工程分析,对本项目实际产生的环境影响以及污染防治、生态保护和风险防范措施的有效性进行了验证评价,在此基础上编制完成了《内蒙古太西煤集团常山多元合金有限公司年产30×104吨铁合金一期项目环境影响后评价报告》。
后评价过程中关注的主要环境问题为运营期产生废气、噪声、废水、固废等对周围环境的影响,工程运行过程中所采取环境保护措施的有效性。
内蒙古太西煤集团常山多元合金有限公司年产30×104吨铁合金一期项目与原环评建设内容一致,工程采取的环境保护措施与原环境影响评价基本相符,根据污染源监测结果可知,本项目运营期废气、废水、噪声、固体废物污染防治措施切实有效,污染物排放均满足国家及地方相关标准要求,因此,本环境影响后评价认为,内蒙古太西煤集团常山多元合金有限公司年产30×104吨铁合金一期项目现状环境影响可接受。
⑴《中华人民共和国环境保护法》(2015年1月1日);
⑵《中华人民共和国环境影响评价法》(2018年12月29日);
⑶《中华人民共和国水污染防治法》(2018年1月1日);
⑷《中华人民共和国大气污染防治法》(2018年10月26日);
⑸《中华人民共和国环境噪声污染防治法》(2018年12月29日);
⑹《中华人民共和国土壤污染防治法》(2019年1月1日);
⑺《中华人民共和国固体废物污染环境防治法》(2016年11月7日)。
⑴《建设项目环境保护管理条例》,国务院第682号令,2017年10月1日执行。
⑵《建设项目环境影响评价分类管理名录》,2017年9月1日施行,2018年4月28日修订;
⑶《产业结构调整指导目录(2019年本)》,国家发展和改革委员会令第29号,2020.1.1;
⑷《国务院关于印发<打赢蓝天保卫战三年行动计划>的通知》,国发〔2018〕22号;
⑸《国务院关于印发<水污染防治行动计划>的通知》,国发〔2015〕17号;
⑹《国务院关于印发<土壤污染污染防治行动计划>的通知》,国发〔2016〕31号;
⑺《企业事业单位环境信息公开办法》,环境保护部令第31号;
⑻《建设项目环境影响评价信息公开机制方案》,环发〔2015〕162号;
⑼《建设项目环境影响评价政府信息公开指南(试行)》,环办〔2013〕103号;
⑽《关于加强环境应急管理工作的意见》,环发〔2009〕130号;
⑾《建设项目环境影响后评价管理办法(试行)》,环境保护部令第37号,2015年12月10日;
(12)《关于加强涉重金属行业污染防控的意见》,环土壤[2018]22号文。
(1)《关于推进铁合金行业加快结构调整的通知》,发改产业[2006]567号
(2)《阿拉善盟环境保护局关于内蒙古太西煤集团常山实业有限责任公司30×104吨铁合金项目环境影响评价执行标准的复函》阿环发[2005]49号;
(3)《关于审核确定自治区扶贫开发工作重点旗县的通知》内蒙古自治区扶贫开发领导小组办公室文件,内扶办发[2002]23号;
(4)《关于内蒙古太西煤集团常山实业有限责任公司年产30×104吨铁合金项目水资源论证报告书》的审查意见,2005年3月31日;
(5)《内蒙古太西煤集团股份有限公司常山工业基地发展规划方案》,2003年7月;
(6)《阿拉善右旗人民政府、内蒙古太西煤集团开发矿产资源和建设常山工业基地协议》2003年7月18日。
(7)《关于内蒙古太西煤集团年产30×104吨铁合金项目立项的环境保护审查意见》内环字[2004]419号,2004年11月12日。
(8)《内蒙古自治区打赢蓝天保卫战三年行动计划实施方案》,2018年9月29日。
(9)《内蒙古自治区工业炉窑大气污染综合治理实施方案》,内环办[2019]295号,2019年9月25日。
⑴《建设项目环境影响评价技术导则-总纲》(HJ2.1-2016);
⑵《环境影响评价技术导则—地表水环境》(HJ2.3-2018);
⑶《环境影响评价技术导则—地下水环境》(HJ610-2016);
⑷《环境影响评价技术导则-大气环境》(HJ2.2-2018);
⑸《环境影响评价技术导则-声环境》(HJ2.4-2009);
⑹《环境影响评价技术导则-生态影响》(HJ19-2011);
⑺《环境影响评价技术导则-土壤环境(试行)》(HJ964-2018);
⑻《建设项目环境风险评价技术导则》(HJ169-2018);
⑼《水污染治理工程技术导则》(HJ2015-2012);
⑽《大气污染治理工程技术导则》(HJ2000-2010);
⑾《环境噪声与振动控制工程技术导则》(HJ2034-2013);
⑿《固体废物处理处置工程技术导则》(HJ2035-2013);
⒀《固体废物鉴别标准 通则》(GB34330-2017);
⒁《排污许可证申请与核发技术规范 铁合金、电解锰工业》(HJ1117-2020);
⒂《清洁生产标准 钢铁行业(铁合金)》(HJ470-2009);
(16)《排污单位自行监测技术指南 总则》(HJ989-2017)。
⑴《内蒙古太西煤集团常山多元合金有限公司年产30×104吨铁合金一期项目环境影响报告书》(中国冶金建设集团包头钢铁设计研究总院,2006年12月);
⑵《内蒙古太西煤集团常山多元合金有限公司年产30×104吨铁合金一期项目验收监测报告》(内蒙古自治区环境监测中心站,2011.11)
⑶《内蒙古太西煤集团常山多元合金有限公司年产30×104吨铁合金一期项目环境影响后评价监测报告》(甘肃绿创环保科技有限责任公司,2020年4月);
根据建设项目污染物排放情况,确定本项目环境影响后评价因子,具体见表1.2-1。
表1.2-1 评价因子一览表
环境要素 | 评价内容 | 评价因子 | |||||
原环评 | 本次后评价 | ||||||
水环境 | 地下水环境质量 | 总硬度、pH值、溶解性总固体、Cl-、SO42-、氟化物、NH3-N、Pb、As、Hg、Cr6+、高锰酸盐指数、总大肠菌群、细菌总数 | pH、总硬度、溶解性总固体、硫酸盐、氯化物、挥发性酚、氰化物耗氧量、氨氮、硝酸盐、亚硝酸盐(以N计)、氰化物、氟化物、汞、砷、镉、铬(六价)、铅、铁、锰、锌、K+、Na+、Ca2+、Mg2+、CO32-、HCO3-。 | ||||
水污染物 | 生产 | 电炉及变压器冷却废水 | 无 | 无 | |||
软水制备废水 | 无 | 无 | |||||
余热锅炉及余热发电废水 | 无 | 无 | |||||
pH、BOD5、CODCr、SS、氨氮。 | |||||||
大气环境 | 环境空气质量现状 | TSP、PM10、SO2、NO2 | TSP、PM10、SO2、NO2、O3、CO | ||||
大气污染物 | 电炉及锅炉 | 有组织 | 烟(粉)尘、SO2 | 烟(粉)尘、SO2 | |||
无组织 | 颗粒物 | 颗粒物 | |||||
声环境 | 厂界噪声 | 等效A声级dB(A) | 等效A声级dB(A) | ||||
土壤 | 土壤环境质量现状 | 未评价 | 未评价 | ||||
⑴地下水
项目区地下水质量执行《地下水质量标准》(GB/T14848-2017)中的III类标准,具体见表1.3-1。
表1.3-1 地下水质量标准限值一览表
标准名称 | 标准号 | 标准级(类)别 | 指标 | 限值 |
《地下水质量标准》 | GB/T14848-2017 | III类 | pH值 | 6.5≤pH≤8.5 |
氨氮(以N计)/(mg/L) | ≤0.50 | |||
总硬度(以CaCO3计)/(mg/L) | ≤450 | |||
耗氧量(CODMn法,以O2计)/(mg/L) | ≤3.0 | |||
硝酸盐氮(以N计)/(mg/L) | ≤20.0 | |||
亚硝酸盐氮(以N计)/(mg/L) | ≤1.0 | |||
挥发性酚类(以苯酚计)/(mg/L) | ≤0.002 | |||
氰化物/(mg/L) | ≤0.05 | |||
总大肠菌群/(MPNb/100mL或CFUc/100mL) | ≤3.0 | |||
溶解性总固体/(mg/L) | ≤1000 | |||
硫酸盐/(mg/L) | ≤250 | |||
氯化物/(mg/L) | ≤250 | |||
氟化物/(mg/L) | ≤1.0 | |||
砷/(mg/L) | ≤0.01 | |||
汞/(mg/L) | ≤0.001 | |||
铬(六价)/(mg/L) | ≤0.05 | |||
铅/(mg/L) | ≤0.01 | |||
镉/(mg/L) | ≤0.005 | |||
铁(mg/L) | ≤0.3 | |||
锰(mg/L) | ≤0.10 | |||
铜(mg/L) | ≤1.00 | |||
锌(mg/L) | ≤1.00 | |||
镍(mg/L) | ≤0.02 |
⑵环境空气
项目所在区环境空气执行《环境空气质量标准》(GB3095-2012)中的二级标准,具体见表1.3-2。
表1.3-2 环境空气质量标准一览表 单位:ug/m3
标准名称 | 标准号 | 污染物 | 分类(级) | 浓度限值 | |||
1小时平均 | 日最大8小时平均 | 24小时平均 | 年平均 | ||||
《环境空气质量标准》 | GB3095-2012 | TSP | 二级 | / | / | 300 | 200 |
PM10 | / | / | 150 | 70 | |||
PM2.5 | / | / | 75 | 35 | |||
SO2 | 500 | / | 150 | 60 | |||
NO2 | 200 | / | 80 | 80 | |||
O3 | 200 | 160 | / | / | |||
CO | 10mg/m3 | / | 4mg/m3 | / | |||
⑶声环境
项目所在区属于3类声环境功能区,环境噪声执行《声环境质量标准》(GB3096-2008)中3类标准,执行《声环境质量标准》(GB3096-2008)中的3类标准:昼间65dB(A)、夜间55dB(A)。
1.3.2.1废气污染物排放标准
(1)有组织废气
在环评阶段:本工程锅炉烟气污染物排放标准采用《锅炉大气污染物排放标准》(GB13271—2001),执行Ⅱ时段标准;生产炉窑采用《工业炉窑大气污染物排放标准》(GB9078—1996),执行新污染源二级标准;《大气污染物综合排放标准》(GB16297—1996),执行新污染源二级标准。
本次后评价时半封闭铁合金电炉采用《铁合金工业污染物排放标准》(GB28666-2012),执行现有污染源半封闭炉标准。
有组织废气执行标准具体见表1.3-3。
表1.3-3 有组织废气执行标准(现有企业)
序号 | 污染物 | 生产工艺或设施 | 限值 | 污染物排放监控位置 |
1 | 颗粒物 | 半封闭炉 | 80 | 排气筒 |
(3)边界无组织废气
厂界无组织废气排放执行《铁合金工业污染物排放标准》(GB28666-2012)表4厂界无组织排放限值。
本次后评价所涉及到的具体执行标准值见表。
表1.3-4 《铁合金工业污染物排放标准》(GB28666-2012)表4
污染物 | 厂界无组织限值(mg/m3) |
颗粒物 | 1.0 |
1.3.2.2废水污染物排放标准
原环评阶段项目用水包括生产、生活给水系统、软化水系统、电炉及变压器循环水系统、硅石冲洗浊环水系统、锅炉等。软水制备、电炉及变压器冷却循环水和锅炉产生的高盐分排水进入硅石冲洗系统循环利用,无生产废水外排。生活污水经地埋式一体化生活污水处理设施处理后达到《污水综合排放标准》(GB8978—1996)一级标准,用于绿化灌溉。
实际运行中无软水制备;矿热炉及变压器冷却循环水系统为封闭式循环水系统,无生产废水产生。
表1.3-5 铁合金工业污染物排放标准(现有企业) 单位:mg/L(pH值除外)
序号 | 污染物 | 间接排放标准 | 单位 |
1 | pH | 6~9 |
|
2 | 悬浮物 | 200 | mg/L |
3 | COD | 200 | mg/L |
4 | 氨氮 | 15 | mg/L |
5 | 总氮 | 25 | mg/L |
6 | 总磷 | 2.0 | mg/L |
7 | 石油类 | 10 | mg/L |
8 | 挥发酚 | 1.0 | mg/L |
9 | 总氰化物 | 0.5 | mg/L |
10 | 总锌 | 4.0 | mg/L |
1.3.2.3噪声排放标准
厂界噪声排放执行《工业企业厂界环境噪声排放标准》(GB12348-2008)中3类标准,见表1.3-6。
表1.3-6 厂界噪声标准 单位:dB(A)
标准 | 分类 | 昼间 | 夜间 |
3类 | Ⅲ类区 | 65 | 55 |
1.3.2.4固体废物标准
(1)工业固体废物贮存、处置执行《一般工业固体废物贮存、处置场污染控制标准》(GB18599-2001)及修改单。
(2)《固体废物鉴别标准——通则》(GB34330-2017)。
表1.3-7 与原环评阶段评价标准对比情况
序号 | 评价标准 | 环评阶段 | 后评价阶段 | 备注 |
1 | 环境空气质量标准 | 《环境空气质量标准》(GB3095—1996),执行二级标准 | 《环境空气质量标准》(GB3095-2012)中的二级标准 | 更新 |
2 | 地下水质量标准 | 《地下水质量标准》(GB/T14848—93),执行Ⅲ类标准 | 《地下水质量标准》(GB/T14848-2017)中的III类标准 | 更新 |
3 | 声环境质量标准 | 《城市区域环境噪声标准》(GB3096—93),执行3类标准 | 《声环境质量标准》(GB3096-2008)中3类标准 | 更新 |
4 | 废气排放标准 | 《工业炉窑大气污染物排放标准》(GB9078—1996),执行新污染源二级标准; 《大气污染物综合排放标准》(GB16297—1996),执行新污染源二级标准; 《锅炉大气污染物排放标准》(GB13271—2001),执行Ⅱ时段标准; | 半封闭铁合金电炉采用《铁合金工业污染物排放标准》(GB28666-2012),执行现有污染源半封闭炉标准 | 更新 |
5 | 废水排放标准 | 《污水综合排放标准》(GB8978—1996),执行一级标准 | 《铁合金工业污染物排放标准》(GB28666-2012),执行现有企业标准 | 更新 |
6 | 噪声排放标准 | 《工业企业厂界噪声标准》(GB12348—90)中的Ⅲ类标准 | 《工业企业厂界环境噪声排放标准》(GB12348-2008)中3类标准 | 更新 |
7 | 固废排放标准 | 《一般工业固体废物贮存、处置场污染控制标准》(GB18599—2001) | 《一般工业固体废物贮存、处置场污染控制标准》(GB18599—2001) | 无变化 |
本次后评价范围原则上与原环境影响评价一致并兼顾相关导则及技术规范更新的内容及要求。建设项目评价范围详见表1.4-1,评价范围图见图1.4-1。
表1.4-1 项目评价范围一览表
序号 | 环境因素 | 原环境影响评价范围 | 本次评价范围 | 备注 |
1 | 大气环境 | 以本次建设项目为中心,东西6km,南北6km的区域为评价范围,总面积为36km2 | 以本次建设项目为中心,边长为6km的矩形区域。 | 与原环境影响评价范围一致。 |
2 | 地表水环境 | 水环境影响只进行一般性分析评述 | 三级B | 与原环评一致 |
3 | 声环境 | 本项目外厂界 | 厂界外200m。 | 根据新《环境影响评价技术导则-声环境》(HJ2.4-2009)规定评价范围有增大 |
4 | 环境风险 | 仅进行简单分析 | 简单分析 | 与原环境影响评价范围一致。 |
5 | 地下水环境 | / | 评价范围以厂址为基准,上游及两侧外扩1km、下游2km的范围,面积6km2。 | 原环评未涉及厂址地下水评价。 |
6 | 土壤环境 | / | / | 本项目不涉及土壤评价 |
7 | 生态环境 | 拟建厂址厂界外2km范围内 | 拟建厂址厂界外2km范围内 | 与原环境影响评价范围一致。 |
图1.4-1 本次后评价评价范围图
地下水:根据《地下水质量标准》(GB/T14848-2017)有关地下水分类原则、评价区域现状地下水功能,确定本项目所在地下水区为III类。
根据《环境空气质量标准》(GB3095-2012),工程所在地为环境空气质量二类功能区。
根据《声环境质量标准》(GB3096-2008)和《城市区域环境噪声适用区划分技术规范》(GB/T15190-2014)中声环境功能分类界定,确定项目区为3类声环境功能区。
根据现场调查,项目区周围无重要保护文物、风景名胜区、水源保护地等敏感点。根据项目特点和外环境特征确定环境保护目标如下:
⑴地表水环境保护目标
项目所在地地表水环境质量达到《地表水环境质量标准》(GB3838-2002)III类标准。
⑵地下水环境保护目标
项目所在地地下水环境质量达到《地下水环境质量标准》(GB/T14848-2017)Ⅲ类标准。
⑶环境空气保护目标:
环境空气保护目标是控制项目主要外排大气污染物的排放,保护评价区内的环境空气质量达到《环境空气质量标准》(GB3095-2012)二级标准。
⑷声环境保护目标:
声环境保护目标是控制项目主要噪声的排放,保护评价区内的声环境质量达到《声环境质量标准》(GB3096-2008)的3类标准。
⑸主要环境敏感点
根据现场踏勘,项目周围10km范围内无环境敏感点,项目主要环境保护目标见下表。
表1.5.2-1 本工程环境敏感目标情况一览表
环境要素 | 环境保护目标 | 本次后评价 | ||||||
坐标 | 保护对象 | 保护内容 | 相对方位 | 相对距离(m) | 人口数 | 环境功能区 | ||
环境空气 | / | / | / | 评价范围内环境空气 |
|
|
| 二类 |
地下水 | / | / | / | 地下水水质 | 厂区周围 |
| III类 | |
该项目于2004年11月12日取得《关于内蒙古太西煤集团年产30×104吨铁合金项目立项的环境保护审查意见》内环字[2004]419号;2004年3月包钢集团设计研究院编制了《内蒙古太西煤集团年产30×104吨铁合金项目可行性研究报告》。
2006年12月中国冶金建设集团包头钢铁设计研究总院完成了《内蒙古太西煤集团常山多元合金有限公司年产30×104吨铁合金一期项目环境影响报告书》;2007年6月8日取得内蒙古自治区环境保护局(厅)《内蒙古太西煤集团常山多元合金有限公司年产30×104吨铁合金一期项目环境影响报告书批复》。
内蒙古太西煤集团常山多元合金有限公司年产30×104吨铁合金项目,于2004年开始建设,分期建设,工程建设符合国家《铁合金行业准入条件》和国家有关法律、法规的规定,符合国家“西部大开发”战略,对内蒙西部地区经济发展具有积极的促进作用。
该工程2004年开工建设,到2005年初完成4×12500kVA铁合金电炉的建设,并已投产运行,到2006年底,另4台12500kVA铁合金电炉已建成,2011年11月内蒙古自治区环境监测中心站编制了《内蒙古太西煤集团常山多元合金有限公司年产30×104吨铁合金一期项目验收监测报告》,2011年11月取得内蒙古自治区环境保护厅文件(内环验〔2011〕123号)《关于内蒙古太西煤集团常山多元合金有限公司年产30×104吨铁合金一期项目(二厂)竣工环境保护验收的意见》。
该项目于2004年11月12日取得《关于内蒙古太西煤集团年产30×104吨铁合金项目立项的环境保护审查意见》内环字[2004]419号;2004年3月包钢集团设计研究院编制了《内蒙古太西煤集团年产30×104吨铁合金项目可行性研究报告》;2006年12月中国冶金建设集团包头钢铁设计研究总院完成了《内蒙古太西煤集团常山多元合金有限公司年产30×104吨铁合金一期项目环境影响报告书》;2007年6月8日取得内蒙古自治区环境保护局(厅)《内蒙古太西煤集团常山多元合金有限公司年产30×104吨铁合金一期项目环境影响报告书批复》。
该工程2004年开工建设,到2005年初完成4×12500kVA铁合金电炉的建设,并已投产运行,到2006年底,另4台12500kVA铁合金电炉已建成,2011年11月内蒙古自治区环境监测中心站编制了《内蒙古太西煤集团常山多元合金有限公司年产30×104吨铁合金一期项目验收监测报告》,2011年11月取得内蒙古自治区环境保护厅文件(内环验〔2011〕123号)《关于内蒙古太西煤集团常山多元合金有限公司年产30×104吨铁合金一期项目(二厂)竣工环境保护验收的意见》。
表2.1-1 内蒙古太西煤集团常山多元合金有限公司年产30×104吨铁合金一期项目环保手续落实情况
分类 | 项目名称 | 报告文件 | 批复/意见/许可文件 |
环境影响评价 | 内蒙古太西煤集团常山多元合金有限公司年产30×104吨铁合金一期项目 | 《内蒙古太西煤集团常山多元合金有限公司年产30×104吨铁合金一期项目环境影响报告书》,中国冶金建设集团包头钢铁设计研究总院,2006年12月。 | 《内蒙古太西煤集团常山多元合金有限公司年产30×104吨铁合金一期项目环境影响报告书审批意见》,内蒙古自治区环境保护局(厅),2007年6月8日; |
竣工环境保护验收 | 内蒙古太西煤集团常山多元合金有限公司年产30×104吨铁合金一期项目 | 《内蒙古太西煤集团常山多元合金有限公司年产30×104吨铁合金一期项目验收监测报告》(内蒙古自治区环境监测中心站,2011年11月); | 《关于内蒙古太西煤集团常山多元合金有限公司年产30×104吨铁合金一期项目(二厂)竣工环境保护验收的意见》(内环验〔2011〕123号),内蒙古自治区环境保护厅,2011年11月30日。 |
(1)生产废水
一期项目的给水系统包括生活给水系统、矿热炉及变压器循环水系统等。矿热炉及变压器冷却循环水系统位封闭式循环水系统,无生产废水。
(2)生活污水
经化粪池处理后与附近电厂废水一并处理后回用于绿化、泼洒等,不外排。
(1)有组织废气(矿热炉及出铁口烟气治理)
一期项目8台矿热炉及出铁口烟气采取出铁口排烟并入矿热炉烟气除尘系统的除尘方案。出铁口烟气和矿热炉产生的高温(800~900℃)烟气采用负压大型集烟罩进行捕集,外逸烟尘量少。烟气采用布袋除尘器除尘,2台硅铁矿热炉设1套除尘系统,除尘后的烟气二分厂通过2根30m高烟囱排放,一分厂为分散排放。
(2)无组织废气
①原料和成品堆存
一期项目的两个分厂原料硅石、合格兰炭、钢屑原料及成品硅铁分别堆存于各自厂内的专用区域,原料堆场和成品堆场地面全部硬化,料场周围设置挡风墙。原料及成品堆存期间采取人工喷淋的方法减少扬尘的产生。
②原料在配料过程产生粉尘,采用电子称量和封闭系统,无粉尘外逸;
③硅铁破碎筛选时,采用风力除尘器将鄂破下料口、皮带下料口、筛下袋袋口三个主要粉尘源装设吸尘斗和引风机,将粉尘集中收集到布袋除尘室中,从而实现破碎无尘化;
④电极三角区、加料口、出料口进行了密闭,对于收尘工段设置围挡、粉尘装袋等相应措施,无组织粉尘排放浓度符合国家控制标准要求。
⑤每两台硅铁炉除尘设施共有8个卸灰口,由星形卸灰阀控制,这种卸灰阀具有密封装置,卸灰时硅微粉不会溢散,用不透灰的专用布袋装灰,装满后用手提缝合机缝合,不会造成硅微粉外逸。
表2.2-1 废气排放及防治措施
污染物来源 | 污染物种类 | 排放方式 | 治理措施 | 排气筒高度 |
矿热炉及出铁口 | 颗粒物 | 连续 | 负压大型集烟罩+布袋除尘器 | 一分厂分散排放,30m(二分厂) |
原料和成品堆存 | 粉尘 | 间断 | 地面全部硬化、料场周围设置挡风墙、人工喷淋 | |
配料 | 粉尘 | 连续 | 电子称量 | |
硅铁破碎筛选 | 粉尘 | 连续 | 自行研制的风力除尘器+吸尘斗和引风机+布袋除尘室 | |
电极三角区、加料口、出料口 | 粉尘 | 间断 | 密闭、设置围挡、粉尘装袋 | |
除尘设施卸灰口 | 粉尘 | 间断 | 星形卸灰阀控制、不透灰的专用布袋装灰 | |
矿热炉及出铁口旋风加布袋除尘器 | 矿热炉及出铁口炉旋风加布袋除尘器 |
原料堆场 | 成品堆场 |
本工程噪声主要来源于原料及产品破碎、硅铁矿热炉、除尘风机、水泵等设备以及冷却塔噪声。设计尽量采用低噪声设备,将产生噪声的设备分别置于建(构)筑物内,并对门窗、墙壁等进行隔声处理。排汽口加装消声器、对冷却塔底部设置隔声墙,各噪声源经隔声消声处理、厂房墙体屏蔽和距离衰减。
表2.2-2 噪声声源及防治措施
噪声源位置 | 噪声源名称 | 降噪措施 |
原料破碎工段 | 破碎机 | 减震、消声、安装降噪底座 |
硅铁矿热炉 | 矿热炉 | 减震、消声、厂房隔声 |
冷却水循环系统 | 冷却塔 | 减震、消声 |
除尘器 | 除尘风机 | 减震、消声、安装降噪底座 |
其它 | 各类风机、泵类 | 减震、消声、厂房隔声 |
本项目产生的固体废物主要为电炉冶炼产生的微量废渣——硅渣、电炉烟气除尘回收的硅粉、电炉产生的废电极和生活垃圾。其中工业固废均属于一般工业固体废物。
废渣为块状、无粉末,全部回收回炉冶炼,产生量为98.3t/a;炉烟气除尘回收的硅粉经加密处理后,回收利用,产生量为200t/a;电炉产生的废电极回收利用,用于修补铁水包,流槽等,产生量为18t/a;生活垃圾送当地垃圾处理厂集中处置,产生量为5.06t/a。
固体废物产生及治理情况见表2.2-3。
表2.2-3 项目今年固体废物产生及治理情况
序号 | 产生位置 | 产生量(t/a) | 污染物名称 | 处理措施 | 储存位置及情况 | 是否满足要求 |
1 | 扒渣工段 | 98.3 | 冶炼废渣 | 80%回用回炉、20%外销 | 厂房前堆场露天堆放 | 不满足 |
2 | 布袋除尘器 | 200 | 硅粉 | 回收利用 | 不透灰的专用布袋装灰收集后运至回收处回收 | 满足 |
3 | 矿热炉 | 18 | 废电极 | 回收利用,修补铁水包,流槽等 | 生产厂房内暂存后会用 | 满足 |
4 | 生活垃圾 | 5.06 | 生活垃圾 | 送至当地垃圾处理厂集中处置 | 在厂区内生活垃圾桶内集中收集 | 满足 |
表2.2-4 项目近三年主要固废产生量及硅铁产量统计。
年度 | 固废名称 | 固废产生量/吨 | 硅铁产量/吨 | 备注 |
2017 | 硅渣、硅微粉 | 1184 | 19082 |
|
2018 | 硅渣、硅微粉 | 957 | 20191 |
|
2019 | 硅渣、硅微粉 | 709 | 18907 |
|
对照项目环评和竣工环境保护验收报告,对环评要求项目采取的环境保护措施和项目建成后落实的环境保护措施进行现场核实,结果详见表2.2-5。
表2.2-5 环评要求项目采取的环境保护措施和项目建成后落实的环境保护措施对比
类型 | 名称 | 项目报告书及批复要求 | 实际运行情况 | |
废气治理措施 | 有组织废气 | 矿热炉及出铁口 | 负压大型集烟罩+布袋除尘器+30m烟囱 | 一分厂未设排气筒,除尘后分散排放 |
无组织 | 原料和成品堆存 | 专用区域+地面全部硬化+人工喷淋 | 地面全部硬化、料场周围设置挡风墙、人工喷淋 | |
配料 | 电子称量和封闭系统 | 封闭系统未落实 | ||
硅铁破碎筛选 | 自行研制的风力除尘器+吸尘斗和引风机+布袋除尘室 | 同环评 | ||
电极三角区、加料口、出料口 | 密闭、设置围挡、粉尘装袋 | 加料口、出料口等未进行密闭 | ||
除尘设施卸灰口 | 星形卸灰阀控制、不透灰的专用布袋装灰 | 同环评 | ||
废水治理措施 | 生产废水(高盐废水) | 进入硅石冲洗系统循环利用,不外排 | 无硅石冲洗废水、电炉等循环水采用封闭循环系统,无废水产生 | |
生活污水 | 经地埋式一体化生活污水处理设施处理后达到《污水综合排放标准》(GB8978—1996)一级标准,用于绿化灌溉 | 排入化粪池处理与附近电厂废水一并处理后回用于绿化、泼洒等,不外排。 | ||
噪声治理措施 | 原料及产品破碎、硅铁矿热炉、除尘风机、水泵等设备噪声 | 各类泵采取基础减振、安装在厂房内的措施,风机设备全部安装在车间内或单独工房内 | 项目除尘器风机位于厂房外 | |
固体废物治理措施 | 扒渣工段 | 炉渣外销筑路进行综合利用,炉渣设临时堆场,采用水泥固化地面,防止渗漏液对地下水的影响 | 80%回用回炉、20%外销 | |
布袋除尘器 | 炉烟气除尘回收的硅粉经加密处理后,销售给湖北潜江江汉环保有限公司,用于建筑工程和化工生产 | 回收利用 | ||
矿热炉 | 废电极定期送往太西煤集团炭素厂回收利用 | 回收利用,修补铁水包,流槽等 | ||
生活垃圾 | 送至当地垃圾处理厂集中处置 | 同环评 | ||
生态 | 绿化 | 在厂区周围、主要道路两侧设置绿地,全厂厂区绿化用地为20000m2 | 实际绿化面积2.2×104㎡,绿化率20%。 | |
(1)项目环保措施更情况
项目环保措施更情况汇总见表2.2.3-1。
表2.2.3-1 建设项目环保措施变更情况汇总一览表
项目名称 | 环评及批复要求 | 截止2019年12月实际建设情况 | 变动原因 |
年产30×104吨铁合金一期工程 | 原料和成品堆存专用区域+地面全部硬化+人工喷淋 | 地面全部硬化、料场周围设置挡风墙、人工喷淋 | 为进一步减小无阻是粉尘外逸,增加料场周围围挡 |
矿热炉及出铁口负压大型集烟罩+布袋除尘器+30m烟囱 | 二分厂:负压大型集烟罩+布袋除尘器+30m烟囱; 一分厂:负压大型集烟罩+布袋除尘器+分散排放 |
| |
高盐废水进入硅石冲洗系统循环利用,不外排 | 无生产废水 | 硅石不进行冲洗、电炉冷却循环水采用了封闭循环水系统 | |
生活污水经地埋式一体化生活污水处理设施处理后达到《污水综合排放标准》(GB8978—1996)一级标准,用于绿化灌溉 | 排入化粪池处理后与附近电厂废水一并处理后回用于绿化、泼洒等,不外排。 | 可回用 | |
废电极定期送往太西煤集团炭素厂回收利用 | 回收利用,修补铁水包,流槽等 | 可回用 | |
炉烟气除尘回收的硅粉经加密处理后,销售给湖北潜江江汉环保有限公司,用于建筑工程和化工生产 | 炉烟气除尘回收的硅粉经压块后,回收利用 | 可回用 |
表2.2-2 项目与重大变更情况的对比
属于重大变动情形 | 本次变更 | ||
性质 | 新增 | 变更 | 无新增 |
完全变化 | 重新环评 | 不符合 | |
规模 | 规模变小、环境影响减小 | 无需变更 | 无变化 |
规模变大、污染排放量增加、环境影响变大 | 重新环评 | ||
地点 | 地点位移较小、环境影响不变或变小 | 无需变更 | 无变化 |
地点位移较大、环境影响变大 | 需做变更 重新报批 | ||
平面布置调整、环境影响增加 | 需做变更 重新报批 | ||
生产工艺 | 施工期、运行期、服务期污染物减少,环境影响变小 | 无需变更,验收阶段说明 | 无变化 |
反之,污染物排放量增大,环境影响变大 | 重大变更 重新报批 | ||
环保措施 | 措施优化后污染物减少,环境影响变小 | 无需变更,验收阶段说明 | 符合 |
保护措施弱化或措施变化后污染物排放量增大,环境影响变大 | 重大变更 重新报批 | 不符合 | |
项目变更后,评价范围内无保护目标,综上所述,项目变更不属于重大变更。本项目的变更内容对环境的影响是可以接受的。
根据生产过程可能发生的事故和非正常状况,企业制定了《环境应急预案》,内容包括应急求援组织机构、职责、应急响应、应急程序、防毒、防火知识等。废气、废水污染事故排放均有完善的风险防范措施,在厂房和建筑物内设置强制通风,以防止有害气体的积聚。严格遵守防护工作制度和有毒物品管理制度。加强宣传教育,加强医疗卫生预防措施,讲究环境卫生和个人卫生,训练工人学习防毒急救技术,学习使用防毒面具。定期检修设备,改进密封结构和加强泄漏检验以消除设备、管道的跑、冒、滴、漏,尽可能采用机械化自动化先进技术,以隔绝毒物与操作人员的接触。所有易爆炸、易中毒的场所设置可燃气体和有毒气体检测报警装置。该项目在废渣堆场和原料成品堆场地面均做有硬化处理,风险物质硅铁的出售和运输均交由有该相关资质的单位和企业操作运行。
实际绿化面积2.2×104㎡,绿化率20%。其中厂区内种植树木、草坪面积1.8×104㎡,厂区外围种植树木面积0.4×
104㎡。
在烟尘排放口都设置了排放标志牌和危害告知牌,建立了污染源监测平台和监控系统,并有效运行。
公司应制定自行监测方案,手工监测委托第三方监测机构进行,具体监测内容见表2.3-1。
表2.3-1 环境监测情况一览表
监测内容 | 监测点位 | 监测项目 | 监测方式/频次 |
废气 | 电炉烟囱 | 二氧化硫 | 1次/季度 |
颗粒物 | 1次/季度 | ||
氮氧化物 | 1次/季度 | ||
无组织废气 | 厂界 | 颗粒物 | 1次/年 |
噪声 | 厂界 | 厂界噪声 | 1次/季度 |
图2.3-1 项目自行监测点位图
本项目排污许可已经在全国排污许可信息管理平台提交,等待审核通过。
本次民意调查采取了在项目附近地区张贴公示材料以及发放民意调查表的形式进行。民意调查内容既要选择与公众关系密切的问题,又要反映被调查者对建设工程的基本态度、观点和要求。由于本项目周围10km内没有集中居民区,因此,选择在已运行的多元合金公司一分厂大门口、临近公路的工业园大门口和额肯呼都格镇长途汽车站张贴公示材料,并发放了公众参予民意调查表,公示时间为2006年10月20日至2006年10月30日,公示期间评价单位没有收到反馈意见。
调查结果表明,多数参与的公众对该项目有所了解,该项目增强了企业的综合竞争力,使当地资源能源得到了充分利用。项目建成后能够拉动当地经济发展,增加就业机会,增加个人的经济收入,改善生活质量。决大部分被调查公众在接受调查前知道本项目;大部分被调查公众对当地环境质量比较满意,不满意的意见主要认为当地缺水、沙尘较大、植被覆盖度低;绝大多数对本期项目关心的环境问题主要是废气影响;大部分别调查公众认为本项目的建设对周围环境的影响较小或轻微。总之,94.85%参与的公众对本项目的建设持支持的态度。
被调查人员还提出了一些合理的建议和要求,归纳如下:
(1)建议本项目采取先进的除尘、除烟设施,以减少废气污染物的影响;
(2)加强绿化,改善当地生态环境;
(3)采取先进的生产设备和工艺,减少“三废”的排放。
通过公众对项目建设环保执行情况的态度,了解公众最关心的环境热点、难点问题,发现曾经存在的社会、环境影响问题,分析确定运营期可能仍遗留的影响,以便改进已有环保措施和提出补救措施,为工程竣工环境保护验收提供更客观、更现实的支持。
调查统计结果表明,83.3%的公众对该工程环境保护执行情况表示满意,16.7%的公众表示基本满意。
由于本项目评价范围内无居民集中区,因此,选择与环评阶段相同的地点(已运行的多元合金公司一分厂大门口、临近公路的工业园大门口和额肯呼都格镇长途汽车站)进行公众参与调查表,期间评价单位没有收到反馈意见。
本项目一分厂为未批先建项目,已经依法接受内蒙古自治区环境保护局处罚,并通过环保验收。
项目名称:内蒙古太西煤集团常山多元合金有限公司年产30×104吨铁合金一期项目(以下简称一期项目)。
建设性质:已建成。
建设规模:建设12500kVA半封闭式电炉8座,年产75#硅铁8×104t。
项目建设地点:拟建厂址位于阿右旗常山工业园内。
内蒙古太西煤集团常山多元合金有限公司年产30×104吨铁合金一期项目厂址位于阿拉善右旗常山工业园,行政区划属阿右旗额肯呼都格镇所属。其地理坐标为:东经101º19′~101º54′,北纬39º03′~39º14′。厂址及其周围无名胜古迹、文物保护区、自然保护区及军事设施等重要设施,地下不压煤。
本工程厂址地理位置见图3.1-1。
图3.1-1 项目地理位置图
厂区东侧、西侧、南侧为工业园区备用用地,西南侧为园区热电厂,距本厂围墙约150m。
《内蒙古太西煤集团常山多元合金有限公司年产30×104吨铁合金一期项目环境影响报告书》中未确定本工程厂界外大气环境及卫生防护距离,大气环境影响评价范围为东西6km,南北6km的区域为评价范围,总面积为36km2。该范围内无环境空气敏感保护目标,厂区周围环境现状见图3.1-1。
内蒙古太西煤集团常山多元合金有限公司年产30×104吨铁合金一期项目完成8×12500kVA铁合金电炉的建设,工程实际总投资7927万元,其中环保投资为2250万元,环保投资占工程总投资的28.4%。
完成8×12500kVA铁合金电炉的建设,以及除尘设施、变电所、循环水系统等设备设施,原料场、产品库房、上料转运等设施的建设、厂区内办公楼、锅炉房、职工宿舍、浴室、食堂等辅助设施的建设,对全厂进行了绿化和硬化。
与原环评阶段相比,工程在实际建设过程中部分内容发生了变更,但不构成重大变动。相关变更内容在工程竣工环境保护验收前上报环保部同意,在原内蒙古自治区环境保护厅文件(内环验〔2011〕123号)《关于内蒙古太西煤集团常山多元合金有限公司年产30×104吨铁合金一期项目(二厂)竣工环境保护验收的意见》中予以确认。
工程具体变更内容见表3.2-1。
表3.2-1 工程具体变更内容
工程组成 | 环境影响报告书(表)及其审批部门审批决定建设内容 | 实际建设及运行情况 | 备注 | |
主体工程 | 半封闭式电炉 | 12500kVA半封闭式电炉8座 | 与环评一致 |
|
烟气余热回收 | 余热锅炉及余热发电机组,20t/h余热锅炉8台 | 未建设 |
| |
汽轮机 | 3000kw,4台 | 未建设 |
| |
辅助工程 | 水源 | 工业用水水源为内蒙古太西煤集团所属常山矿区的煤矿疏干水;生活用水为自来水,由阿右旗自来水公司供给 | 与环评一致 |
|
冷却系统 | 电炉及变压器冷却采用间接空冷系统,辅机冷却系统采用通风冷却塔的循环供水系统 | 与环评一致 |
| |
贮运工程 | 原料和成品堆存 | 硅石、合格兰炭、钢屑原料储存分别堆存于厂内原料堆场内的专用区域 | 与环评一致 |
|
废电极暂存 | 临时堆放于专用封闭仓库内,堆放时间2个月,并建立档案制度 | 与环评一致 |
| |
环保工程 | 废气治理措施 | 矿热炉及出铁口负压大型集烟罩+布袋除尘器+30m烟囱 | 一分厂矿热炉及出铁口正压大型集烟罩+除尘器+分散排放 |
|
原料和成品堆存专用区域+地面全部硬化+人工喷淋 | 原料和成品堆存地面全部硬化、料场周围设置挡风墙、人工喷淋 | |||
配料进行电子称量和封闭系统 | 封闭系统未建设 | |||
硅铁破碎筛选废气自行研制的风力除尘器+吸尘斗和引风机+布袋除尘室 | 同环评 | |||
电极三角区、加料口、出料口废气密闭、设置围挡、粉尘装袋 | 加料口、出料口未密闭 | |||
除尘设施卸灰口星形卸灰阀控制、不透灰的专用布袋装灰 | 同环评 | |||
废水治理措施 | 生产废水(高盐废水)进入硅石冲洗系统循环利用,不外排 | 余热锅炉、软化水系统未建设,无高盐废水产生,且硅石不再清洗,冷却水采用封闭循环水系统,无生产废水产生 |
| |
生活污水经地埋式一体化生活污水处理设施处理后达到《污水综合排放标准》(GB8978—1996)一级标准,用于绿化灌溉 | 排入化粪池处理后与附近电厂废水一并处理后回用于绿化、泼洒等,不外排。 |
| ||
固废治理措施 | 炉渣外销筑路进行综合利用,炉渣设临时堆场,采用水泥固化地面,防止渗漏液对地下水的影响 | 80%回用回炉、20%外销 |
| |
硅粉经输灰系统和硅粉回收系统收集后装袋封闭存放,外销给水泥厂进行利用 | 回收利用 |
| ||
废电极定期送往太西煤集团炭素厂回收利用 | 回收利用,修补铁水包,流槽等 |
| ||
送至当地垃圾处理厂集中处置 | 同环评 |
| ||
噪声治理措施 | 各类泵采取基础减振、安装在厂房内的措施,风机设备全部安装在车间内或单独工房内,厂界噪声达到GB12348-2008中的3类标准 | 厂界噪声监测结果满足GB12348-2008中的3类标准要求。 |
| |
本项目的年工作日为330天,每天3班制,每班8小时,年工作时数为7920小时,劳动定员640人。已投产的一分厂劳动定员为320人。
一期项目主要产品为75#硅铁,具体的产品方案见表3.2-1。
表3.2-1 项目主要产品设计、实际产量一览表
序号 | 产品名称 | 规格 | 设计产能 | 实际产能 | 备注 |
1 | 硅铁 | 75# | 8×104 | 8×104 |
|
一期工程设计生产规模为年产硅铁8×104t,生产过程中需要的主要原辅材料为硅石、兰炭、钢屑、电极糊等,其消耗量及主要成分见表3.2-2。其他辅助材料还包括电极壳、铜瓦和锭模等。
序号 | 原辅材料名称 | 单耗kg/t | 年耗t/a | 主要成分% | 粒度 |
1 | 硅石 | 1800 | 144000 | SiO2>97,Al2O3 <1.0 | 30~80mm |
2 | 兰炭 | 950 | 76000 | 固定碳>84,灰分<9,挥发份<8,S≤0.02 | 5~18mm |
3 | 钢屑 | 250 | 20000 | 碳素钢屑 |
|
4 | 电极糊 | 67 | 5360 |
| 理化指标符合YB/T5215-1996规定 |
5 | 用电 | / | 6.8×108kWh/a |
|
|
6 | 用水 | / | 162.9m3/h |
|
|
项目主要生产设备见表3.2-2。
表3.2-2 项目主要设备一栏表
序号 | 设备名称 | 型号 | 单位 | 数量 | 备注 |
1 | 矮烟罩半封闭铁合金电炉 | 12500kVA | 座 | 8 |
|
2 | 捣炉机 |
| 台 | 16 |
|
3 | 烧穿器 |
| 台 | 8 |
|
4 | 电机振动给料机 |
| 台 | 2 |
|
5 | 钢屑破碎机 |
| 台 | 2 |
|
6 | 火花捕集器 |
| 台 | 8 |
|
7 | 引风机 |
| 台 | 8 |
|
8 | 袋式除尘器 | TLC7040 | 台 | 4 | 2台电炉配一套除尘器 |
9 | 冷却塔 |
| 座 | 2 |
|
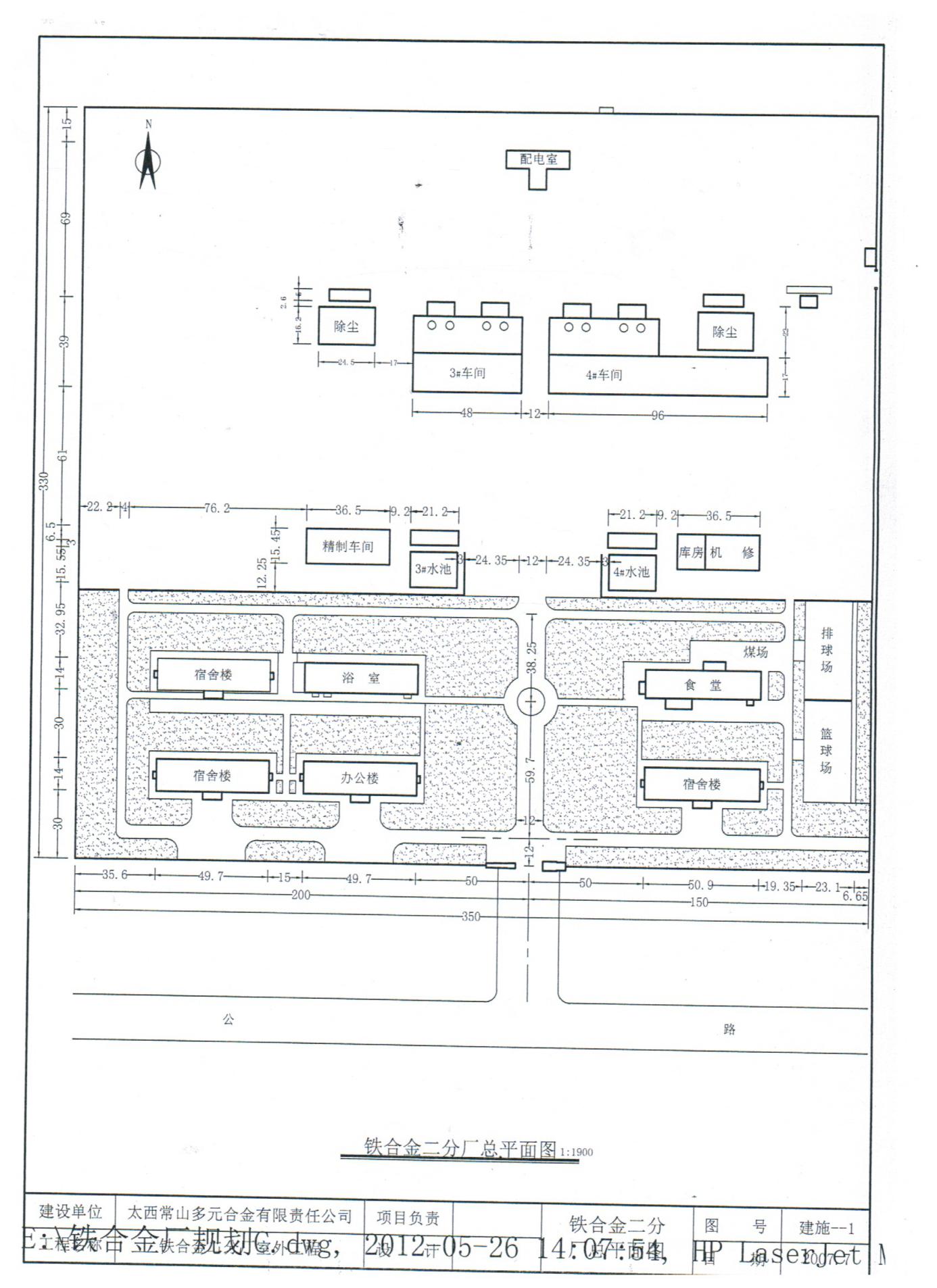
一分厂及二分厂平面布置图见下图。
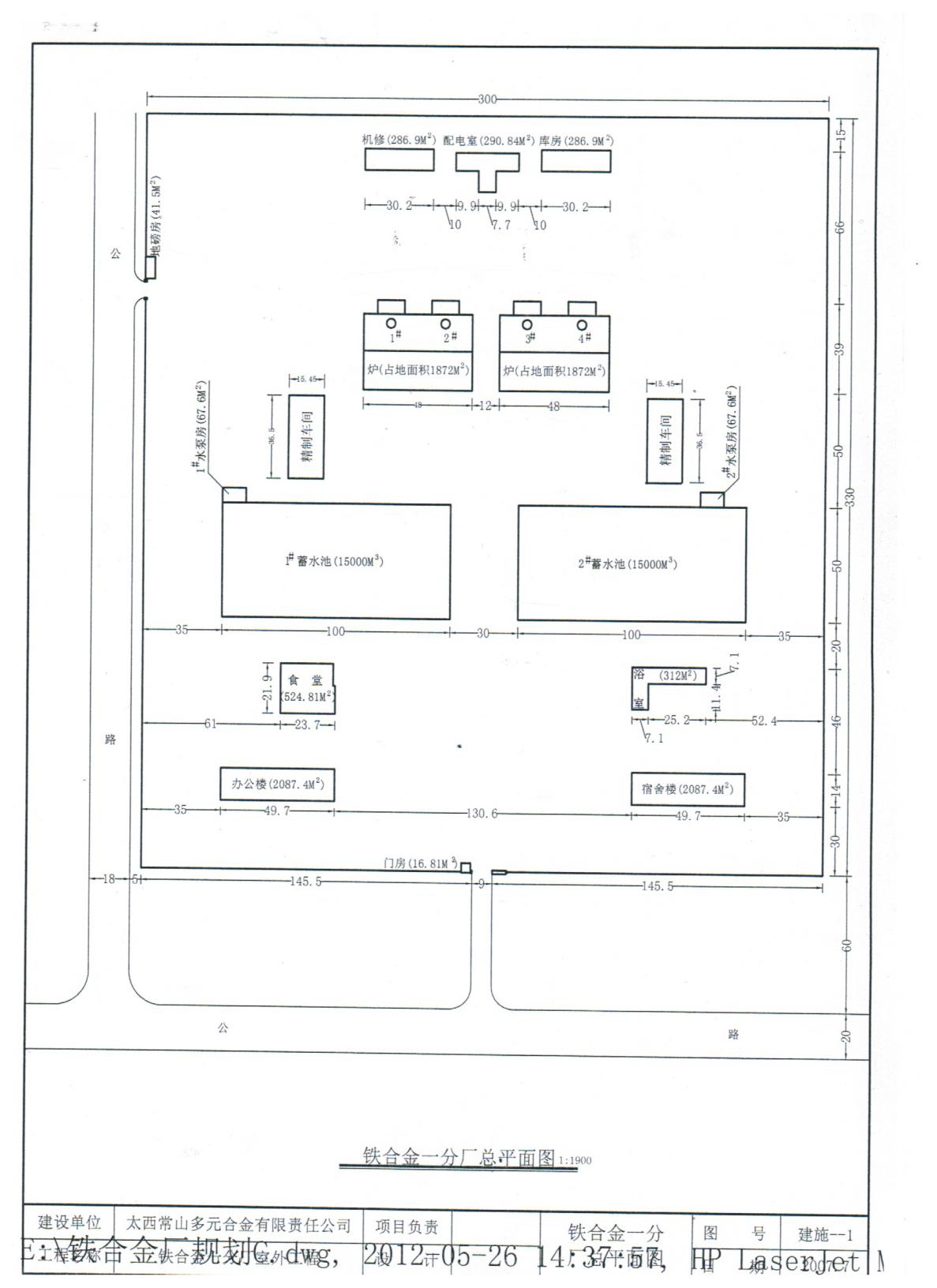
图3.2-1 一分厂平面布置图
图3.2-2 二分厂平面布置图
1、硅铁生产工艺
硅铁生产的工艺流程为将合格的硅石、兰炭、钢屑用电子称按比例进行配料后,漏入斜桥上料车内,通过斜桥上料车,由斜桥卷扬提升到受料漏斗内。再用电动配料小车送至炉顶平台贮料仓。炉料通过下料管全部御至操作平台炉子两侧,用人工加料,调节炉况,使冶炼保持正常状态。
硅铁在铁合金电炉冶炼的过程中,是在高温下(温度1500~1670℃)进行,SiO2溶液被固态碳还原的过程,其反应方程式是:
随着炉内温度的继续升高,SiO2分解为SiO(气),继续反应,生成中间物SiC、SiO2(气)C、Si,SiC与炉内已被熔化的铁,在高温下继续反应生成硅铁,反应方程式为:
液态硅铁从出铁口流入铁水包,然后用卷扬过跨车运至浇注跨,再用吊车吊起铁水包,扒渣后在锭模上进行浇注。然后进行脱模、精整、过跨称量后贮存,用车运走。
图3.3-2 项目工艺流程及产污环节
根据对工程生产工艺过程的分析,可以看出本项目运行时产生污染物的生产环节如下:
(1)原料堆存
一期项目的2个分厂原料硅石、合格兰炭、钢屑原料储存分别堆存于各自厂内原料堆场内的专用区域。原料堆存期间会产生扬尘。
(2)硅石冲洗
项目硅石冲洗产生废水。
(3)配料工序
原料在配料过程产生粉尘级噪声,硅铁破碎筛选时产生粉尘,电极三角区、加料口、出料口产生粉尘,除尘设施卸灰口产生硅微粉外逸。
(4)矿热炉冶炼工序
电炉及出铁口会产生含尘烟气。
(5)扒渣工序
铁合金电炉冶炼在硅铁扒渣时产生炉渣及废电极、噪声。
(6)除尘工序
电炉布袋除尘器收集到的烟尘产生除尘灰。
(7)浇筑工序
铁水包及浇筑时产生粉尘
(8)精整工序
产品精整时产生粉尘及噪声。
项目正常运行过程中,将产生各种废气、废水、废渣及噪声。
(1)废气污染物
项目废气主要为原料硅石、合格兰炭、钢屑原料储存产生无组织粉尘。电炉及出铁口产生烟气,通过除尘后外排;原料在配料过程产生粉尘,硅铁破碎筛选时产生的粉尘;电极三角区、加料口、出料口产生的无组织粉尘;除尘设施卸灰口产生的硅微粉外逸。
(2)废水污染物
项目用水主要为电炉及变压器冷却循环水,项目目前采用封闭循环水系统,无生产废水产生。
项目还产生生活污水,主要污染物为pH、BOD5、CODCr、SS、动植物油、LAS、氨氮、总磷。
(2)固体废物
项目固体废物主要为铁合金电炉冶炼废渣、废电极;布袋除尘器收集到的除尘灰,主要成分为硅粉。
(4)噪声
项目噪声主要产生于原料及产品破碎、硅铁矿热炉、除尘风机、水泵等设备,各种机械设备的噪声范围为85~110dB(A)。
⑴电炉及出铁口烟气
原环评阶段电炉及出铁口烟气治理主要采用负压大型集烟罩进行捕集,烟气采用布袋除尘器除尘,2台硅铁电炉设1套除尘系统,除尘后的烟气通过30m高烟囱排放。
实际运行中一分厂未设排气筒,烟尘经除尘器后分散排放,二分厂除尘后的烟气通过30m高烟囱排放。
本工程废气治理措施及排放量核算情况见表3.4-1。
表3.4-1 本工程排烟状况一览表
项 目 | 符号 | 单位 | 合计 | ||
烟囱 | 烟囱方式 | 每两台电炉共用一根烟囱,共计2根烟囱 | |||
几何高度 | Hs | m | 30 | ||
出口内径 | D | m | 0.8 | ||
大气污染物排放状况 | SO2 | 排放浓度 | mg/m3 | 35 | |
排放量 | t/a | 453.024 | |||
NOx | 排放浓度 | mg/m3 | 24 | ||
排放量 | t/a | 434.016 | |||
烟尘 | 排放浓度 | mg/m3 | 5.1 | ||
排放量 | t/a | 164.736 | |||
⑵无组织扬尘的治理措施及排放分析
原环评阶段要求无组织扬尘产生的产品原料堆场,地面全部硬化、料场周围设置围挡、人工喷淋,配料废气进行电子称量和封闭系统,硅铁破碎筛选废气自行研制的风力除尘器+吸尘斗和引风机+布袋除尘室,电极三角区、加料口、出料口废气密闭、设置围挡、粉尘装袋,除尘设施卸灰口星形卸灰阀控制、不透灰的专用布袋装灰,厂区周围粉尘浓度可满足《大气污染物综合排放标准》(GB16297~1996)中无组织排放源周界外浓度限值(1.0mg/m3)要求。
实际运行阶段项目无组织扬尘产生的节点主要为产品原料堆场,其地面全部硬化、料场周围设置围挡、人工喷淋,配料废气进行电子称量未采用封闭系统;硅铁破碎筛选废气自行研制的风力除尘器+吸尘斗和引风机+布袋除尘室;电极三角区、加料口、出料口废气未密闭、但设置了围挡、粉尘装袋;除尘设施卸灰口采用星形卸灰阀控制、不透灰的专用布袋装灰,根据本次后评价(实际运行3台电炉)监测资料可知厂区周围颗粒物浓度可满足《大气污染物综合排放标准》(GB16297~1996)中无组织排放源周界外浓度限值(1.0mg/m3)要求。
无生产废水产生,生活污水排入化粪池收集后与附近电厂废水一并处理后回用于绿化、泼洒等,不外排。
项目废水产生及治理措施见表3.4-2。
表3.4-2 废水产生及治理措施一览表
废水项目 | 排放方式 | 平均产生量(m3/d) | 处理方式 | 处理规模 | 处理去向 | 主要污染因子 |
工业废水 | 连续 | 0 | - | - | 密闭循环系统,无生产废水 | - |
生活污水 | 连续 | 57.6 | 化粪池 | - | 化粪池收集后与附近电厂废水一并处理后回用于绿化、泼洒等,不外排。 | pH、BOD5、CODCr、SS、动植物油、LAS、氨氮、总磷 |
本工程对主要设备采取隔声降噪等措施,以保证厂界噪声达标。本工程的主要设备噪声见表3.4-3。
表3.4-3 本工程的主要设备噪声
噪声源名称 | 台数 | 噪声值dB(A) | 降噪措施 | 备注 |
电机振动给料机 | 2 | 80 |
|
|
破碎机 | 2 | 93 | 减震、消声、安装降噪底座 | 距声源1m处,连续 |
矿热炉 | 8 | 85 | 减震、消声、厂房隔声 | |
冷却塔 | 2 | 75 | 减震、消声 | |
除尘风机 | 8 | 85 | 减震、消声、安装降噪底座 | |
各类风机、泵类 | 8 | 85 | 减震、消声、厂房隔声 | |
汽轮发电机组 | 4 | 100 | 减震、消声 |
现状运营过程产生的固体废物主要是炉渣、废电极、除尘灰(硅粉)、生活垃圾等。
固体废物产生及排放情况见表3.4-4。
表3.4-4 本项目固体废物产生及排放情况
序号 | 固废名称 | 固废类型 | 产生量(t/a) | 自身消减量 | 贮存或处理处置量 | 排放量 | 备注 |
1 | 炉渣 | 一般工业固体废物 | 98.3 | 0 | 98.3 | 0 | 为块状、无粉末,80%回用回炉、20%外销 |
2 | 废电极 | 一般工业固体废物 | 18 | 0 | 18 | 0 | 回收利用,修补铁水包,流槽等 |
3 | 除尘灰(硅粉) | 一般工业固体废物 | 200 | 0 | 200 | 0 | 压块处理后,回用于生产 |
6 | 生活垃圾 | 生活垃圾 | 5.06 | 0 | 5.06 | 0 | 当地垃圾处理厂集中处置 |
说明:固体废物产生量为2020年统计数据。 | |||||||
本次后评价重点分析本工程环评批复之后国家新出的相关政策的符合性,具体见表3.5-1。
表3.5-1 工程与现行相关政策符合性分析
政策名称 | 政策内容 | 本工程 | 符合性分析 |
《产业结构调整指导目录(2019年本)》 | 限制类2×2.5万千伏安以下普通铁合金矿热电炉(中西部具有独立运行的小水电及矿产资源优势的国家确定的重点贫困地区,矿热电炉容量>2×1.25万千伏安; | 本工程为8×12500KVA | 不属于限制、淘汰类项目 |
关于推进《铁合金行业加快结构调整》的通知(发改产业﹝2006﹞567号) | 严格行业准入管理,控制生产能力增长。严格执行《铁合金行业准入条件》,禁止新建25000千伏安以下,以及25000千伏安及以上但环境保护、资源消耗、能源消耗、工艺装备等达不到准入要求的铁合金矿热电炉项目,其中中西部具有独立运行的小火电和矿产资源优势的国家确定的重点贫困地区禁止新建12500千伏安以下的矿热电炉项目。禁止新建300立方米以下的锰铁高炉项目。现有铁合金生产企业要全面整改,限期达到《铁合金行业准入条件》规定的能源消耗、资源消耗、环境保护、 安全生产等方面的要求。
| 本工程位中西部具有矿产资源优势的国家确定的重点贫困地区且为25000千伏安以上环境保护、资源消耗、能源消耗、工艺装备等达到准入要求的铁合金矿热电炉项目 | 符合 |
由于本项目排污许可证还未获得,因此项目许可排放总量数据还未获得,且项目环评批复中未给出总量控制指标,因此污染物排放总量方面仅针对本次后评价期间污染物实际排放量与项目环评报告及二分厂环保验收时的污染物排放量进行对比分析。本项目后评价期间污染物排放总量与环评批复的总量指标对比情况见表3.6-1。
表3.6-1 本项目与环评批复的总量、排污许可衔接情况
工程名称 | 项目 | 与环评、验收污染物排放对比情况 | |||
污染物 | 本次后评价监测污染物排放总量t/a | 环保验收时污染物排放量t/a | 与环保验收符合性 | 备注 | |
本项目 | SO2 | 209.7 | 226.512 | 符合 |
|
烟尘 | 30.56 | 82.368 | 符合 |
| |
氮氧化物 | 143.8 | 217.008 | 符合 |
| |
COD | 2.4 | 2.96 | 符合 | 项目废水不外排,因此COD,氨氮不设排放总量 | |
氨氮 | 0.02 | 0.034 | 符合 | ||
备注:项目废气监测时工程运行电炉为3台,运行负荷为37.5%,但本表中污染物排放量按运行负荷100%进行核算 | |||||
在《关于内蒙古太西煤集团常山多元合金有限公司年产30×104吨铁合金一期项目环境影响报告书的批复》中说明项目一分厂已通过环保验收,其建设符合相关要求,本次评价视二分厂验收污染物排放量与一分厂等同,由此可见一期工程废气、废水污染物实际排放总量均小于验收时污染物排放量,并且符合《铁合金工业污染物排放标准》(GB28666-2012),执行现有污染源半封闭炉标准(颗粒物80mg/m3)。
内蒙古太西煤集团常山多元合金有限公司年产30×104吨铁合金一期项目厂址位于阿拉善右旗常山工业园,行政区划属阿右旗额肯呼都格镇所属。其地理坐标为:东经101º19′~101º54′,北纬39º03′~39º14′。
本项目西距阿右旗政府所在地额肯呼都格镇约15km,南距兰新铁路金昌站147km,东距雅布赖盐场120km,东南距内蒙古太西煤集团红沙岗工业区71km,均有公路相通,交通十分方便。厂址地势较为开阔,厂区范围内为沙漠戈壁地带,地形起伏不大,自然标高在1640~1692m,地形自然坡度为2.5%左右,呈西高东低。
本项目所在地处雅布赖山系西端的北大山南麓,潮水盆地北缘,即北大山与南部盆地之间的过渡地带。构成西高东低的簸状地形,地形较为平坦,海拔1400m~1600m,北大山切割较深,海拔1700m~1900m,最高峰1944m,比高100~250m,属低山丘陵。
本项目位于北大山山前,洪积戈壁平原,由第四系洪积砂砾石砂碎石,砂、亚砂土构成,地势西北略高,东南略低,海拔由西北部的1647m渐渐降至东南部1600m,比高47m。地上地下均无文物古迹,无国家指定的保护动物物种。
项目区属干旱气候区,冬季寒冷,夏季高温酷暑。据阿右旗气象站1961~2000年气象资料统计分析,历年平均气温8.2℃,年温差较大1月份最低,历年平均-9.5℃,8月份气温最高,历年平均22.0℃,极端最低气温-27.8℃,最高41.5℃,风沙盛行,最大风速22.3m/s,扬沙年平均次数29次,主要集中于3~8月份,其中沙尘暴年平均次数6次,最多可达20次(1986年),年平均冻土深度85㎝。
多年平均降水量为115.8mm,主要集中在6~8月,占全年降水量的65%,从龙首山向北逐渐递减。多年平均蒸发量为2410mm,是多年平均降水量的20.8倍,与降水量相反,由南向北递增。
阿拉善右旗地处干旱内陆地区,降水量少,且时空分布不均衡,境内无长年性河流,地表水较为缺乏,无论是城镇供水、牧区人畜饮水和灌溉用水主要靠地下水,全旗水资源总量3.9×108m3。
巴丹吉林沙漠中分布有113个湖泊,常年有水的湖泊74个,大部分为咸水湖,径流条件较好的地区有少量淡水湖,总水面面积32.67km2;由于降水少,多以小雨为主,故只在山丘地区和大于8mm有效降雨时才会产生地表径流,地表径流多产生在龙首山、阿拉腾特布希山和雅布赖山区,这些区域一般还藏有潜流,有些出露成泉;地下水分为基岩裂隙水、碎屑岩类裂隙水及承压水、第四系松散岩类孔隙水及承压水、沙漠孔隙水4类,地下水总储量2.35×108m3。
本项目厂址东侧有大西子沟自北向南通过,百年一遇洪水位为1633m,本项目厂址不受洪水威胁。附近地区多个煤矿有大量疏干水外排。
根据现场调查,项目周围环境保护目标未发生变化,项目周围环境保护目标变化情况见表4.2-1。
表4.2-1 本次后评价工程环境敏感目标情况一览表
环境要素 | 环境保护目标 | 本次后评价 | ||||||
坐标 | 保护对象 | 保护内容 | 相对方位 | 相对距离(m) | 人口数 | 环境功能区 | ||
环境空气 | / | / | / | 环境空气质量 | 评价范围内 | / | 二类 | |
地下水 | / | / | / | 地下水水质 | 厂区周围 | / | III类 | |
根据现场调查及走访,周边区域在本项目竣工环保验收后,污染源未发生较大变化,区域无新增污染源。区域主要污染源仍为园区热电厂及甘肃省境内煤矿企业。
以下内容引自《内蒙古太西煤集团常山多元合金有限公司年产30×104吨铁合金一期项目环境影响报告书》。
项目区域的地质勘测点取地下水样进行分析。
监测项目包括:总硬度、pH值、溶解性总固体、Cl-、SO42-、氟化物、NH3-N、Pb、As、Hg、Cr6+、高锰酸盐指数、总大肠菌群、细菌总数14项。
监测时间为2005年11月8日。按照监测技术规范进行采样、处理和分析。
地下水现状监测分析结果见表4.4—1。
表4.4-1 地下水质现状监测结果
项目 | 监测值 | GB/T14848-93Ⅲ类标准值 |
pH值 | 7.34 | 6.5~8.5 |
溶解性总固体 | 3132 | ≤1000 |
氨氮 | 0.013 | ≤0.2 |
总硬度(以CaCO3计) | 356.2 | ≤450 |
硫酸盐 | 178.28 | ≤250 |
氟化物 | 0.98 | ≤1.0 |
高锰酸盐指数 | 0.7 | ≤3.0 |
氯化物 | 111.6 | ≤250 |
六价铬 | 0.002 | ≤0.05 |
汞 | (0.00005) | ≤0.001 |
砷 | (0.004) | ≤0.05 |
铅 | (0.1) | ≤0.05 |
大肠菌群 | 1 | ≤3.0 |
细菌总数 | 60 | ≤100 |
监测结果表明:监测的14项污染因子除溶解性总固体超标外,其余项目均符合地下水(GBT14848/93)Ⅲ类标准水质要求。溶解性总固体超标是由于当地地质条件造成的。
本次监测共设2个监测点位,项目地下水流向上游及下游。
(1)监测点位
表4.4-2 本次后评价地下水监测点位
编号 | 监测点名称 | 井深(m) | 经纬度 |
1# | 项目地下水流向上游 | 60 | E:101°56'43.56" N:38°58'23.31" |
2# | 项目地下水流向下游 | 53 | E:101°48'52.94" N:39°06'57.99" |
(2)监测项目、时间及频率
监测因子:pH、总硬度、溶解性总固体、硫酸盐、氯化物、挥发性酚、氰化物耗氧量、氨氮、硝酸盐、亚硝酸盐(以N计)、氰化物、氟化物、汞、砷、镉、铬(六价)、铅、铁、锰、锌、K+、Na+、Ca2+、Mg2+、CO32-、HCO3-,共27项。
监测时间及频率:2020.3.26-2020.3.27;连续两天,每天1次。
(3)监测分析方法
按《地表水环境质量标准》(GB3838-2002)以及《地表水和污水监测技术规范》(HJ/T91-2002)中的分析方法进行。
(4)监测结果统计及评价
本次评价地下水监测点监测结果统计见表4.4-3。
项目 | 监测结果 | 标准值 | 超标率 | 评价指数 | |||
1# 项目地下水流向上游 | 2# 项目地下水流向下游 | ||||||
3月26日 | 3月27日 | 3月26日 | 3月27日 | ||||
pH | 7.17 | 7.23 | 7.81 | 7.74 | 6.5-8.5 | 0 | 0.503~0.605 |
总硬度 | 744 | 749 | 911 | 907 | ≤450 | 100 | 1.65~2.02 |
耗氧量 | 1.1 | 1.1 | 0.6 | 0.7 | ≤3 | 0 | 0.2~0.36 |
氨氮 | 0.139 | 0.144 | 0.099 | 0.089 | ≤0.5 | 0 | 0.178~0.288 |
挥发酚 | 0.0003L | 0.0003L | 0.0003L | 0.0003L | ≤0.002 | 0 | 0 |
氰化物 | 0.004L | 0.004L | 0.004L | 0.004L | ≤0.05 | 0 | 0 |
铬(六价) | 0.004L | 0.004L | 0.004L | 0.004L | ≤0.05 | 0 | 0 |
氟化物 | 2.80 | 2.82 | 1.71 | 1.83 | ≤1.0 | 100 | 1.71~2.82 |
硝酸盐(以N计) | 4.58 | 4.91 | 7.11 | 6.75 | ≤20 | 0 | 0.229~0.355 |
亚硝酸盐 | 0.016L | 0.016L | 0.016L | 0.016L | ≤1 | 0 | 0 |
氯化物 | 425 | 428 | 495 | 481 | ≤250 | 100 | 1.7~1.98 |
硫酸盐 | 728 | 741 | 763 | 757 | ≤250 | 100 | 7.28~7.63 |
砷 | 0.0003L | 0.0003L | 0.0005 | 0.0007 | ≤0.01 | 0 | 0~0.07 |
汞 | 0.00004L | 0.00004L | 0.00004 | 0.00004 | ≤0.05 | 0 | 0~0.08 |
溶解性总固体 | 1.77×103 | 1.69×103 | 2.00×103 | 2.03×103 | ≤1000 | 100 | 1.69~2.03 |
铅 | 0.001L | 0.001L | 0.001L | 0.001L | ≤0.05 | 0 | 0 |
镉 | 0.0001L | 0.0001L | 0.0001L | 0.0001L | ≤0.005 | 0 | 0 |
CO32- | 0 | 0 | 0 | 0 | / | / | / |
HCO3- | 149 | 145 | 177 | 173 | / | / | / |
锰 | 0.02 | 0.02 | 0.08 | 0.07 | ≤0.1 | 0 | 0.2~0.8 |
铁 | 0.04 | 0.03 | 0.03L | 0.03L | ≤0.3 | 0 | 0~0.133 |
锌 | 0.05L | 0.05L | 0.22 | 0.23 | ≤1 | 0 | 0~0.23 |
K+ | 4.66 | 4.58 | 5.44 | 4.92 | / | / | / |
Na+ | 688 | 688 | 806 | 809 | / | / | / |
Ca2+ | 91.8 | 92.0 | 223 | 226 | / | / | / |
Mg2+ | 108 | 108 | 74.4 | 73.4 | / | / | / |
本项目评价范围内无地下水环境保护敏感点,因此本次监测重点针对区域地下水水质情况进行,水质对比使用区域平均值。
将原环评阶段和现状监测水质对比可知,项目区地下水水质监测结果有所变化,原环评阶段溶解性总固体等部分盐类监测因子超标,根据本次后评价现状监测结果可知区域地下水中仍为部分盐类监测因子超标。本项目项目生产用水主要为电炉循环水,采用封闭式循环水系统无生产废水排放,废水主要为生活污水,经化粪池处理后与附近电厂废水一并处理后回用于绿化、泼洒等,不外排。项目废水中含盐量较低,同时根据采样情况可知区域地下水埋深在50~60m,应属承压水,不易受到污染,且含盐量不是项目废水污染物特征因子,因此项目地下水盐类物质超标可能该区域地下水天然背景值或与区域干旱地下水资源采用但补给不足有关,与本项目运行关系较小。
与原环评对比分析见图4.4-1。
图4.4-1 地下水环境质量现状与原环评对比分析
以下内容引自《内蒙古太西煤集团常山多元合金有限公司年产30×104吨铁合金一期项目环境影响报告书》中环境空气现状评价内容。该内容为利用阿拉善盟环境监测站于2005年11月进行了一次为期7天的环境空气现状监测。
(1)监测范围及监测布点
在36km2的环境空气评价范围内,按照功能布点和网格布点相结合的布点原则,共布设3个监测点,分别为:1#本项目厂址,2#工业园西北部、3#唐家沟。
(2)监测时间及频率
监测时间为2005年11月1日~7日,监测频率依据《环境空气质量标准》中“污染物数据统计的有效性规定”执行,每日监测6次,分别在02:00、07:00、10:00、14:00、16:00、19:00。
(3)监测项目
监测项目为TSP、PM10、SO2和NO2。监测期间同步测定风向、风速、气温、气压等常规气象要素。
(4)监测结果分析
本项目评价范围内环境空气中TSP和SO2的污染均较轻,4个监测点TSP日平均浓度、SO2小时平均浓度及日平均浓度均未出现超标现象。
TSP:监测期间3个监测点TSP日平均值浓度范围为0.030~0.146mg/m3,均未出现超标现象。
PM10:监测期间3个监测点TSP日平均值浓度范围为0.022~0.100mg/m3,均未出现超标现象。
SO2和NO2:监测期间SO2小时平均浓度在监测期间全部未检出。
由以上监测结果可知,本项目评价范围内采暖季TSP、PM10、SO2和NO2的污染均较轻,环境空气现状较好。
(5)环境空气现状评价
①评价方法
采用单因子指数法进行评价,其公式为:
Ii = Ci / Si
式中:Ii—污染物i的单项质量指数;
Ci—污染物i的实测浓度平均值;
Si—污染物i的环境空气质量标准。
②评价标准
采用《环境空气质量标准》(GB3095—1996)中的二级标准。
③评价结果
TSP和SO2的单因子指数均小于1,说明评价区TSP和SO2均满足环境空气质量要求,说明评价区内的环境空气质量现状较好。
表4.5-1 空气单因子指数评价结果
单因子指数 监测点名称 | I TSP | I PM10 | I SO2 | I NO2 |
本项目厂址 | 0.100~0.413 | 0.147~0.667 | 0.005 | 0.009 |
工业园西北部 | 0.120~0.353 | 0.193~0.320 | 0.005 | 0.009 |
唐家沟 | 0.130~0.487 | 0.147~0.580 | 0.005 | 0.009 |
由于项目周围环境空气评价范围内无敏感点,原环评监测的厂址处变为污染物排放监测点,因此本次后评价环境空气质量现状评价引用阿拉善盟国控点数据中的监测数据,评价区域内环境质量状况的变化。监测期间本项目正常运行(50%),监测结果能代表现状环境质量,引用数据有效。
阿拉善盟2018年SO2、NO2、PM10、PM2.5年均浓度分别为10 ug/m3、11 ug/m3、69 ug/m3、34 ug/m3;CO 24小时平均第95百分位数为0.9mg/m3,O3日最大8小时平均第90百分位数为163 ug/m3;超过《环境空气质量标准》(GB3095-2012)中二级标准限值的污染物为O3。
从区域角度看,自项目运行以来,区域基本无新增企业,相应污染物排放主要为本项目及园区热电厂以及甘肃省境内部分采矿企业。
本次环境影响后评价期间,阿拉善盟国控点中超标因子为O3,项目排放污染物主要为粉尘、SO2,对区域O3污染贡献较小,其余污染因子环境空气质量现状达标,总体来说项目的建设对周围环境空气影响较小。
以下内容引自《内蒙古太西煤集团常山多元合金有限公司年产30×104吨铁合金一期项目环境影响报告书》。
在本期项目一分厂和二分厂厂界,按每隔约100m布一个测点,每个分厂周围布设4个监测点,共设8个监测点,各监测点的位置参见图4.7-1。
监测时间为2005年11月7日,分昼间和夜间分别进行,每次测量10分钟的连续等效A声级(Leq(A))。
测量仪器采用HS6288型噪声监测仪,满足《声级计电声性能及测试方法》(GB3875-83)规定的2型及以上的积分型精密声级计;按《城市区域环境噪声测量方法》(GB/T14623-93)中的规定的方法执行。
环境噪声现状监测结果见表4.7—1。
表4.6—1 境噪声现状监测结果
测点编号 | 测点方位 | 昼间[Leq(A):dB(A)] | 夜间[Leq(A):dB(A)] | ||
测量值 | 标准 | 测量值 | 标准 | ||
1# | 一分厂东侧 | 44.2 | 65 | 42.5 | 55 |
2# | 一分厂南侧 | 45.6 | 40.6 | ||
3# | 一分厂西侧 | 44.8 | 43.6 | ||
4# | 一分厂北侧 | 42.9 | 39.8 | ||
5# | 二分厂东侧 | 43.7 | 38.2 | ||
6# | 二分厂南侧 | 41.0 | 39.9 | ||
7# | 二分厂西侧 | 39.9 | 40.9 | ||
8# | 二分厂北侧 | 40.6 | 36.8 | ||
从噪声监测结果看,由于一分厂已经投产,一分厂界噪声现状监测值高于未投产的二分厂厂界噪声。一分厂厂界昼间监测值在42.9~45.6dB(A) 之间,夜间监测值在39.8~43.6dB(A)之间;二分厂厂界昼间监测值在39.9~43.7dB(A) 之间,夜间监测值在36.8~40.9dB(A)之间。2个分厂厂界噪声均远低于《工业企业厂界噪声标准》(GB12348—90)Ⅲ类标准昼间值和夜间值要求。
本次后评价在厂区周围进行监测。
(1)监测点布设
本次后评价共设6个监测点,各监测点的位置参见图4.7-2和图4.7-2。
(2)监测时间及频率
监测时间为2020年3月,分昼间和夜间分别进行,每次测量10分钟的连续等效A声级(Leq(A))。
(3)监测仪器及方法
测量仪器采用HS6288型噪声监测仪,满足《声级计电声性能及测试方法》(GB3875-83)规定的2型及以上的积分型精密声级计;按《城市区域环境噪声测量方法》(GB/T14623-93)中的规定的方法执行。
图4.6-2 后评价噪声监测点位
(4)监测内容
厂界噪声监测内容见表4.6-2,监测点位见图4.6-1。
表4.6-2 厂界噪声监测内容一览表
类别 | 方位 | 监测项目 | 监测频次 |
厂界 | 厂界东侧 | 等效A声级dB(A) | 2019年8月3日和8月4日连续监测2天,每天昼间、夜间各一次;昼间监测时段为:06:00~22:00,夜间监测时段为:22:00~次日06:00。 |
厂界南侧A | |||
厂界南侧B | |||
厂界西侧 | |||
厂界北侧A | |||
厂界北侧B | |||
7#东南侧2# |
(5)监测结果及评价
厂界噪声监测结果见表4.6-3。
表4.6-3 厂界噪声监测结果
点位编号 | 点位名称 | 监测结果 | |||
3月25日 | 3月26日 | ||||
昼间 | 夜间 | 昼间 | 夜间 | ||
1# | 厂界东侧 | 44.2 | 40.2 | 44.7 | 41.1 |
2# | 厂界南侧A | 56.7 | 49.4 | 55.5 | 49.0 |
3# | 厂界南侧B | 45.3 | 41.1 | 45.8 | 40.9 |
4# | 厂界西侧 | 53.4 | 48.1 | 54.2 | 48.3 |
5# | 厂界北侧A | 40.8 | 38.8 | 42.5 | 39.1 |
6# | 厂界北侧B | 50.2 | 47.3 | 51.5 | 48.4 |
从噪声监测结果来看,工程运营期厂界周围6个点的噪声监测值昼间在40.8~56.7dB(A)之间,夜间在38.8~49.4B(A)之间,昼夜间噪声虽有增大但均能够满足《工业企业厂界环境噪声排放标准》(GB12348-2008)中的3类噪声标准限值要求。
原环评中未对土壤环境质量进行评价。
(1)划分依据
①项目类别
根据《环境影响评价技术导则 土壤环境(试行)》(HJ964-2018)附录A中项目土壤环境影响评价项目类别,本项目属于制造业中的其他,土壤环境影响评价项目类别为Ⅲ类。
②占地规模
本项目永久占地面积10×104m2,10hm2,为5~50hm2,项目占地规模为中型。
③土壤环境敏感性
建设项目所在地周边的土壤环境敏感程度分为敏感、较敏感、不敏感,判别依据见下表。
表4.7-1 土壤污染影响型敏感程度分级表
敏感程度 | 判别依据 |
敏感 | 建设项目周边存在耕地、园地、牧草地、饮用水水源地或居民区、学校、医院、疗养院、养老院等土壤环境敏感目标 |
较敏感 | 建设项目周边存在其他土壤环境敏感目标 |
不敏感 | 其他情况 |
根据现场踏勘,本项目周边调查及评价范围内为常山工业园的工业用地无农田,故土壤环境敏感程度为不敏感。
(2)评价工作等级划分依据
根据《环境影响评价技术导则 土壤环境(试行)》(HJ964-2018),土壤环境影响凭借工作等级划分见下表。
表4.7-2 土壤污染影响型评价工作等级分级表
占地规模
敏感程度 | Ⅰ类 | Ⅱ类 | Ⅲ类 | ||||||
大 | 中 | 小 | 大 | 中 | 小 | 大 | 中 | 小 | |
敏感 | 一级 | 一级 | 一级 | 二级 | 二级 | 二级 | 三级 | 三级 | 三级 |
较敏感 | 一级 | 一级 | 二级 | 二级 | 二级 | 三级 | 三级 | 三级 | - |
不敏感 | 一级 | 二级 | 二级 | 二级 | 三级 | 三级 | 三级 | - | - |
注:“-”表示可不开展土壤环境影响评价工作 | |||||||||
(3)评价工作级别确定
综合以上分析,根据《环境影响评价技术导则 土壤环境(试行)》(HJ964-2018)土壤污染影响型项目环境影响评价工作等级划分原则,确定本项目土壤环境影响评价工作为可不开展土壤环境影响评价工作。因此本次后评价未对土壤环境现状进行监测与评价。
阿拉善右旗地处内蒙古高原西部的阿拉善台地南部,东西长415km,南北宽375km。举世闻名的巴丹吉林沙漠横贯东西,全旗沙地面积占总面积的74%,是内蒙古西部生态环境综合治理的重点地区之一。
本期项目厂址位于阿右旗常山工业园,地处沙漠边缘,本地区干旱多风,降水少且变率大,地表松散堆积物广布,风蚀作用强烈,植被稀疏,种类组成简单,生产力低力,环境承载力差。
建旗三十多年来全旗人工林面积为1013.33hm2,封育保护天然灌木林(梭梭林)18441 hm2,森林覆盖率为1.4%。由于受自然和人为因素的影响,阿右旗生态环境特征主要表现在以下几方面:
①大风、沙尘暴灾害频繁;
②降水稀少,地下水位普遍下降,水质恶化;
③植被退化严重,土地沙漠化加剧。
全旗植被稀疏,野生植物种属贫乏,植被覆盖率为5~15%,森林覆盖率仅为1.3%,建种群、优势种以耐寒、耐旱、耐盐碱、耐风沙的灌木和半灌木为主,如梭梭、沙枣、花棒等是荒漠地区优良灌木树种。主要植被为珍珠、红砂、木本猪毛菜、霸王、盐爪爪、白刺等超旱生灌木及小灌木,植被覆盖度为6%。生态环境脆弱是这一区域自然环境的基本特征,在这一区域生存的自然植被均具有较强的抗逆性,抗天气干旱、抗生理干旱,耐高温,耐寒冷,抗沙埋,生存能力较强。
厂区绿化情况见下图。
|
|
项目目前是及运行电炉为3台,大气有组织及无组织监测数据仅为3台电炉运行时数据,但本次后评价报告中污染物排放总量为根据现状监测数据换算为运行负荷为100%的污染物排放量。
⑴措施有效性
本工程实际运行中循环水采用封闭式循环水系统,无生产废水产生。
项目生活污水经化粪池处理后与附近电厂废水一并处理后回用于绿化、泼洒等。
(1)措施有效性
从监测结果来看,项目生活污水化粪池出水水质因子完全可以满足《铁合金工业污染物排放标准》(GB28666-2012)现有企业标准要求。故生活污水处理措施可行且有效。
⑵化粪池处理效率
本次后评价对化粪池出口水质监测结果见表5.1-1。化粪池进出口详细监测结果见表5.1-2。
表5.1-1 本次后评价对化粪池出口水质表 mg/L,pH除外
项目 | 水质因子 | ||||||
pH | COD | BOD5 | 氨氮 | 总氮 | 总磷 | 挥发性酚 | |
本次后评价出水水质 | 7.95 | 123 | 34.8 | 0.905 | 13.4 | 0.16 | 0.01L |
《铁合金工业污染物排放标准》(GB28666-2012) | 6~9 | 200 | / | /15 | 25 | 2.0 | 1.0 |
项目 | 氰化物 | SS | 动植物油 | 石油类 | 锌 | 阴离子表面活性剂 |
|
本次后评价出水水质 | 0.004L | 10 | 0.06L | 0.06L | 0.05L | 0.05L |
|
《铁合金工业污染物排放标准》(GB28666-2012) | 0.5 | 200 | / | 10 | 4.0 | / |
|
从监测结果来看,项目工艺废水出水水质因子完全可以满足《铁合金工业污染物排放标准》(GB28666-2012)现有企业标准要求。故工业废水处理措施可行且有效。
⑵化粪池处理效率
化粪池进出口详细监测结果见表5.1-2。
由表5.1-2可知,化粪池对CODCr的去除效率为59%、对SS的去除效率为68%、对氨氮的去除效率为48.1%、对BOD5的去除效率为62%。
表5.1-2 化粪池进出口详细监测结果
监测项目 | (生活)污水处理站进口 | (生活)污水处理站出口 | ||||||||||||||||||
2020年3月26日 | 2020年3月27日 | 2020年3月26日 | 2020年3月27日 | |||||||||||||||||
1-1-1 | 1-1-2 | 1-1-3 | 1-1-4 | 1-2-1 | 1-2-2 | 1-2-3 | 1-2-4 | 2-1-1 | 2-1-2 | 2-1-3 | 2-1-4 | 2-2-1 | 2-2-2 | 2-2-3 | 2-2-4 | |||||
pH | 7.63 | 7.58 | 7.61 | 7.56 | 7.65 | 7.68 | 7.72 | 7.59 | 7.95 | 7.91 | 7.84 | 7.92 | 7.85 | 7.88 | 7.93 | 7.97 | ||||
COD | 300 | 310 | 345 | 315 | 285 | 268 | 308 | 322 | 123 | 114 | 120 | 111 | 129 | 126 | 108 | 116 | ||||
BOD5 | 91.5 | 92.5 | 95.3 | 94.7 | 93.5 | 939 | 90.7 | 93.1 | 34.8 | 36.2 | 35.8 | 33.4 | 34.1 | 33.9 | 33.0 | 34.2 | ||||
氨氮 | 1.31 | 1.31 | 1.38 | 1.45 | 1.51 | 1.38 | 1.31 | 1.51 | 0.905 | 0.838 | 0.905 | 0.973 | 0.905 | 0.973 | 0.905 | 0.973 | ||||
总氮 | 25.8 | 33.2 | 26.7 | 27.7 | 23.3 | 21.9 | 22.8 | 25.8 | 13.4 | 13.2 | 14.9 | 12.8 | 13.8 | 12.4 | 12.9 | 11.6 | ||||
总磷 | 0.35 | 0.33 | 0.36 | 0.31 | 0.25 | 0.29 | 0.27 | 0.30 | 0.16 | 0.18 | 0.20 | 0.18 | 0.13 | 0.15. | 0.17 | 0.18 | ||||
挥发性酚 | 0.01L | 0.01L | 0.01L | 0.01L | 0.01L | 0.01L | 0.01L | 0.01L | 0.01L | 0.01L | 0.01L | 0.01L | 0.01L | 0.01L | 0.01L | 0.01L | ||||
氰化物 | 0.004L | 0.004L | 0.004L | 0.004L | 0.004L | 0.004L | 0.004L | 0.004L | 0.004L | 0.004L | 0.004L | 0.004L | 0.004L | 0.004L | 0.004L | 0.004L | ||||
SS | 31 | 26 | 27 | 24 | 23 | 32 | 28 | 29 | 10 | 8 | 11 | 9 | 12 | 14 | 13 | 10 | ||||
动植物油 | 0.06L | 0.06L | 0.06L | 0.06L | 0.06L | 0.06L | 0.06L | 0.06L | 0.06L | 0.06L | 0.06L | 0.06L | 0.06L | 0.06L | 0.06L | 0.06L | ||||
石油类 | 0.06L | 0.06L | 0.06L | 0.06L | 0.06L | 0.06L | 0.06L | 0.06L | 0.06L | 0.06L | 0.06L | 0.06L | 0.06L | 0.06L | 0.06L | 0.06L | ||||
锌 | 0.67 | 0.67 | 0.69 | 0.74 | 0.69 | 0.69 | 0.70 | 0.71 | 0.05L | 0.05L | 0.05L | 0.05L | 0.05L | 0.05L | 0.05L | 0.05L | ||||
阴离子表面活性剂 | 0.05L | 0.05L | 0.05L | 0.05L | 0.05L | 0.05L | 0.05L | 0.05L | 0.05L | 0.05L | 0.05L | 0.05L | 0.05L | 0.05L | 0.05L | 0.05L | ||||
本次后评价对排气筒对应的处理设施处理效果进行了监测(由于项目8台矿热炉均相同,每两台设1根排气筒,因此本次后有组织废气对5#~6#号炉进行监测,其他矿热炉废气可参照),具体监测点位、监测因子及监测频次见表5.2.1-1,监测因子选择依据原环评废气污染源评价因子、项目验收监测因子、《铁合金工业污染物排放标准》(GB28666-2012)、并结合各工艺废气污染物实际排放特征进行确定,具体见表5.2-1。
工程监测结果见表5.2-2。
表5.2-1 项目有组织废气监测因子
排气筒编号 | 污染源 | 监测点 | 监测项目 | 监测因子选择依据 | 监测频次 |
3# | 矿热炉 | 排气筒出口 | 烟气参数、颗粒物、SO2、NOx、氟化物、 | 原环评、验收、《铁合金工业污染物排放标准》(GB28666-2012) | 每天监测3次,连续2天 |
表5.2-2 污染源监测结果(进口)
污染源名称 | 采样日期 | 监测项目 | 测定值 | 平均值 | ||
6#炉进口 | 2020.3.26 | 平均流速(m/s) | 37.1 | 39.5 | 37.5 | 38.0 |
标态风量(m3/h) | 99864 | 98803 | 103642 | 100770 | ||
含氧量(%) | 21.0 | 21.0 | 21.0 | 21.0 | ||
颗粒物浓度(mg/m3) | 3560 | 5762 | 4589 | 4637 | ||
SO2浓度(mg/m3) | 48 | 43 | 40 | 44 | ||
NOx浓度(mg/m3) | 33 | 54 | 42 | 43 | ||
氟化物浓度(mg/m3) | 0.47 | 0.59 | 0.56 | 0.54 | ||
CO浓度(mg/m3) | 126 | 121 | 116 | 121 | ||
2020.3.27 | 平均流速(m/s) | 37.0 | 39.6 | 37.6 | 38.1 | |
标态风量(m3/h) | 99335 | 98855 | 103777 | 100656 | ||
含氧量(%) | 20.9 | 21.0 | 21.0 | 21 | ||
颗粒物浓度(mg/m3) | 4023 | 6123 | 5532 | 5226 | ||
SO2浓度(mg/m3) | 44 | 40 | 43 | 42 | ||
NOx浓度(mg/m3) | 12 | 14 | 12 | 13 | ||
氟化物浓度(mg/m3) | 0.62 | 0.49 | 0.57 | 0.56 | ||
CO折算浓度(mg/m3) | 125 | 114 | 106 | 115 | ||
表5.2-2 废气监测结果表(出口)
污染源名称 | 采样日期 | 监测项目 | 测定值 | 平均值 | ||
(5#、6#) 炉总排口 | 2020.3.26 | 平均流速(m/s) | 14.9 | 16.1 | 15.5 | 15.5 |
标态风量(m3/h) | 183010 | 193964 | 190379 | 189118 | ||
含氧量(%) | 21.0 | 20.9 | 21.0 | 21.0 | ||
颗粒物浓度(mg/m3) | 4.2 | 3.4 | 7.6 | 5.1 | ||
SO2浓度(mg/m3) | 39 | 36 | 30 | 35 | ||
NOx浓度(mg/m3) | 32 | 27 | 23 | 24 | ||
氟化物浓度(mg/m3) | 0.46 | 0.49 | 0.50 | 0.49 | ||
2020.3.27 | 平均流速(m/s) | 15.7 | 14.9 | 15.1 | 15.2 | |
标态风量(m3/h) | 187779 | 180819 | 178211 | 182270 | ||
含氧量(%) | 21.0 | 21.0 | 21.0 | 21 | ||
颗粒物浓度(mg/m3) | 6.5 | 4.0 | 2.5 | 4.3 | ||
SO2浓度(mg/m3) | 30 | 32 | 38 | 33 | ||
NOx浓度(mg/m3) | 22 | 27 | 29 | 26 | ||
氟化物浓度(mg/m3) | 0.43 | 0.55 | 0.41 | 0.46 | ||
从废气污染物监测结果看:矿热炉废气排气筒(3#)颗粒物浓度满足《铁合金工业污染物排放标准》(GB28666-2012)中现有企业标准,项目对颗粒物处理效率为99.87%;SO2及氟化物排放浓度满足《工业炉窑大气污染物排放标准》GB9078-1996表4中钢铁烧结冶炼二级标准,NOx满足《大气污染物综合排放标准》GB16297-1996新污染源表2二级标准。
可见,有组织废气排放环节废气治理设施均有效。
本工程无组织排放废气污染物主要为颗粒物。本次后对厂界颗粒物浓度进行监测。无组织废气监测结果见表5.2-3。
表5.2-3 厂界无组织废气监测结果统计表 单位: mg/m3
监测点 | 项目 | 监测因子 | |
颗粒物 | |||
厂界上风向G01# | 2020.3.25 | 浓度范围 | 0.488~0.701 |
2020.3.26 | 0.456~0.675 | ||
厂界下风向G02# | 2020.3.25 | 浓度范围 | 0.610~0.825 |
2020.3.26 | 0.606~0.849 | ||
厂界上风向G03# | 2020.3.25 | 浓度范围 | 0.652~0.878 |
2020.3.26 | 0.656~0.859 | ||
厂界下风向G04# | 2020.3.25 | 浓度范围 | 0.604~0.817 |
2020.3.26 | 0.757~0.841 | ||
执行标准 | 《铁合金工业污染物排放标准》(GB28666-2012)表7 | 1.0 | |
达标判定 | 达标 | ||
从监测结果来看,项目所在厂界特征污染因子排放浓度满足《铁合金工业污染物排放标准》(GB28666-2012)表7厂界无组织限值。但项目监测期间仅3台电炉运转,项目无组织产尘点负荷为37.5%,厂界颗粒物浓度较高,可能与项目周围为荒地且植被覆盖度较低,颗粒物背景浓度较高有关。项目采取一定的无组织污染防治措施可使厂界无组织废气污染物达标排放。
硅铁生产的主要噪声源为铁合金电炉运转、除尘尘器风机、除尘器电机、冷却塔、水泵等设备产生的噪声。从噪声类型看主要是空气动力性噪声和机械性噪声。根据本次后评价监测可知项目厂界周围噪声满足《工业企业厂界环境噪声排放标准》(GB12348-2008)中的3类噪声标准限值要求,说明本项目噪声治理措施可行。
本项目产生的固体废物主要为电炉冶炼产生的微量废渣——硅渣、电炉烟气除尘回收的硅粉、电炉产生的废电极和生活垃圾。其中工业固废均属于一般工业固体废物。
废渣为块状、无粉末,80%回用回炉、20%外销;炉烟气除尘回收的硅粉经加密处理后回收利用;电炉产生的废电极回收利用,修补铁水包,流槽等;生活垃圾送当地垃圾处理厂集中处置。
各类固体废物均合理处置。
企业制定了《环境应急预案》,内容包括应急求援组织机构、职责、应急响应、应急程序、防毒、防火知识等。废气、废水污染事故排放均有完善的风险防范措施。该项目在废渣堆场和原料成品堆场地面均做有硬化处理,风险物质硅铁回收利用。
工程投运以来,未发生环境风险事故,可见环境风险防范措施可行有效。
以下内容引自《内蒙古太西煤集团常山多元合金有限公司年产30×104吨铁合金一期项目》:
一期项目全部实施后的给水系统包括生产、生活给水系统、软化水系统、电炉及变压器循环水系统、硅石冲洗浊环水系统、余热锅炉及余热发电系统等。生产用水重复利用率97.36%。软水制备、电炉及变压器冷却循环水、余热锅炉及余热发电产生高盐分排水进入硅石冲洗系统重复利用,并在硅石冲洗过程中全部消耗,可保证生产废水不外排。
一期项目生活污水经地埋式一体化生活污水处理设施处理后达到《污水综合排放标准》(GB8978—1996)一级标准,用于绿化灌溉。
因此,本次铁合金一期项目无废水排放。
工程实际运行中:一期项目的给水系统包括生产、生活给水系统、矿热炉及变压器循环水系统等。该项目生产用水重复利用率95.8%。矿热炉及变压器冷却循环水系统为封闭式,无生产废水产生。一期项目生活污水经化粪池处理后与附近电厂废水一并处理后回用于绿化、泼洒等,不外排。
项目地表水环境影响预测符合原环评结论。
(1)长期浓度预测结果
一期项目实施后长期浓度预测结果表明,评价区TSP年平均浓度最大贡献值为0.1168mg/m3,相当于二级标准的58.40%,出现在厂区内。评价区内相当于二级标准10.00%的覆盖面积仅为0.55km2。PM10年平均浓度最大贡献值为0.0005mg/m3,相当于二级标准的0.50%。评价区内相当于二级标准0.30%的覆盖面积为1.23km2。SO2年平均浓度最大贡献值为0.0048mg/m3,相当于二级标准的8.00%。评价区内相当于二级标准5.00%的覆盖面积为1.42km2。本项目年平均浓度贡献均不超过二级标准限值。
(2)短期浓度预测结果
①典型日
典型日日均浓度预测结果表明,各关心点各污染物叠加后,TSP各点叠加值占标准百分数在35.33%~49.20%之间,PM10各点叠加值占标准百分数在58.07%~66.73%之间,SO2各点叠加值占标准百分数在0.50%~1.03%之间,均不超过国家二级标准。
②最大落地浓度
电炉及出铁口烟气非正常排放时TSP的最大落地浓度均较小,最大值出现在B类稳定度、风速为1.0m/s的情况下,此时最大落地浓度为0.1603mg/m3,出现在离源149m的下风向,占参考标准的(1mg/m3)16.03%,可见,对环境影响较小。
总体而言,一期项目污染源对厂区附近环境产生一定的影响,根据预测结果可以看出,其对周围环境空气质量影响较小,没有改变该区域内空气的环境功能。
根据本次后评价引用的环境空气质量数据可知,阿拉善盟2018年SO2、NO2、PM10、PM2.5年均浓度分别为10 ug/m3、11ug/m3、69ug/m3、34 ug/m3;CO 24小时平均第95百分位数为0.9mg/m3,O3日最大8小时平均第90百分位数为163 ug/m3;超过《环境空气质量标准》(GB3095-2012)中二级标准限值的污染物为O3。
从区域角度看,自项目运行以来区域实际影响的污染源发生了一定的变化,致使环境空气中的污染物变化情况不同。
单从本项目来看,本项目各污染物排放量均能满足相应排放标准,对区域污染物的贡献值也相应减少,且本项目不排放O3且排放的污染物与引起O3二次污染的关系不大,因此阿拉善盟区域O3发生超标现象与本项目运行关系较小,说明本项目大气污染物的排放对区域大气环境的影响较小。
可见项目废气排放对周围环境的影响较小,可被周围环境所接受,符合环评预测结论。
原环评未对地下水进行影响预测,而根据《内蒙古太西煤集团常山多元合金有限公司年产30×104吨铁合金一期项目环境影响报告书》中对地下水监测的的14项污染因子除溶解性总固体超标外,总硬度、氟化物等接近标准,其余项目均符合地下水(GB/T14848-2017)Ⅲ类标准水质要求。溶解性总固体超标、总硬度、氟化物等接近标准可能是由于当地地质条件造成的。工程区地下水和本项目有关的污染因子均满足《地下水质量标准》(GB/T14848-2017)中III类标准,出现超标的因子为氟化物、硫酸盐、总硬度、氯化物、溶解性总固体。
硫酸盐、氯化物、氟化物不是本项目污水特征因子,超标原因应与本项目无直接关系;总硬度、溶解性总固体不是本项目特征因子,超标原因可能是项目区本底值较高。
一期项目全部实施后,各测量点的噪声值在现状的基础上均有一定程度的增加,且夜间增加的幅度略大于昼间。一分厂厂界昼间噪声预测值分布范围为44.1~47.4dB(A),比现状值增加1.2~2.2dB(A);夜间噪声预测值分布范围为42.0~45.8dB(A),比现状值增加2.2~4.2dB(A)。二分厂厂界昼间噪声预测值分布范围为45.3~47.5dB(A),比现状值增加3.5~6.9dB(A);夜间噪声预测值分布范围为45.1~47.2dB(A),比现状值增加5.2~10.1dB(A)。所有噪声预测值均符合标准要求。
经预测,一期项目噪声源产生的噪声经过厂房隔音和距离衰减后,厂界噪声预测较现状值有所增加,均未超过标准,对厂界的影响程度较小。本期项目所在地周围地势空旷,周围无居民,因此,本期项目实施后设备产生的噪声对周围环境的影响主要集中在厂区内,对周围环境影响较小。
根据本次后评价对项目厂界噪声监测可知,工程采取噪声控制措施后,厂界噪声均满足《工业企业厂界环境噪声排放标准》(GB12348-2008)中的3类标准限值要求,符合原环评预测结论。
一期项目8台电炉均采用无渣法生产,冶炼废渣主要在硅铁扒渣时产生主要由SiO2、Al2O3、FeO、CaO、MgO等组成,炉渣外销筑路进行综合利用。炉渣设临时堆场,设计采用水泥固化地面,防止渗漏液对地下水的影响。最终外销兰州九鹏煤业有限责任公司。硅粉具有较高的经济效益,由于该粉尘颗粒细小,85%~90%在10um以下,通过密闭仓压实,外销。来源于铁合金电炉,送往太西煤集团炭素厂回收利用。
本期项目固体废物均不含有毒有害物质,为一般固体废物,临时堆存于贮仓的固废不会对周围地表水体、地下水、土壤环境造成污染危害。
由以上分析可知,本期项目固体废物经采取有效的综合利用后,固体废物对周围环境基本不会产生污染影响。
本项目产生的固体废物主要为电炉冶炼产生的微量废渣——硅渣、电炉烟气除尘回收的硅粉、电炉产生的废电极和生活垃圾。其中工业固废均属于一般工业固体废物。
废渣为块状、无粉末,全部回收回炉冶炼,产生量为98.3t/a;炉烟气除尘回收的硅粉经加密处理后,回用于生产,产生量为200t/a;电炉产生的废电极回收利用,修补铁水包,流槽等,产生量为18t/a;生活垃圾送当地垃圾处理厂集中处置,产生量为5.06t/a。
因此,项目产生的固体废物均合理处理处置,对环境的影响很小,与环评结论相符。
原环评未对土壤环境影响进行预测,根据《环境影响评价技术导则 土壤环境(试行)》(HJ964-2018)及项目排放的污染物主要为颗粒物及SO2、NOx可知项目为可不开展土壤环境影响评价工作。说明本项目运营期对土壤环境影响较小。
根据调查,内蒙古太西煤集团常山多元合金有限公司年产30×104吨铁合金一期项目建设规模与原环评和竣工验收时一致,工程采取的环境保护措施与原环境影响评价基本相符。
根据污染源监督性监测结果可知,工程运营期废气、废水、噪声、固体废物污染防治措施切实有效,污染物排放均满足国家及地方相关标准要求,未出现超标情况。
在环境风险单元设置了相应的环境风险防控与应急措施,措施基本完善、有效,能够在发生突发环境事件时及时对泄漏、燃烧、爆炸的环境风险物质进行控制,避免事件进一步扩大。工程投运以来,未发生环境风险事故。
内蒙古太西煤集团常山多元合金有限公司管理制度总体健全,环境信息公开完善、及时,落实了排污许可制度。
综合分析来看,内蒙古太西煤集团常山多元合金有限公司年产30×104吨铁合金一期项目环境保护工作基本落实到位,但还有部分问题需要改进:
本次后评价通过对项目所涉及的工程在现有资料收集及现场勘查的基础上,排查出需要改进的环保问题如下:
(1)原料产品堆场防风抑尘措施不完善。
(2)环评要求矿热炉尾气排气筒高度为30m,共4根排气筒,实际项目一分厂矿热炉经除尘后分散排放,二分厂符合要求。
(3)厂区自行监测方案。
(1)原料产品堆场未按环评要求设置挡风墙,同时设置喷水设施。
(2)按照《排污许可证申请与核发技术规范 铁合金、电解锰工业》补充完善自行监测方案,并按照《排污单位自行监测技术指南 总则》(HJ989-2017)规定的频次进行定期监测。
(3)电极三角区、加料口、出料口未按环评要求进行密闭;
(4)原料在配料过程产生粉尘,未采用环评要求的电子称量和封闭系统;
(5)部分固体废物储存不符合相应要求,扒渣固废露天堆放至厂房外空地上。
现有环保问题整治措施实施时限要求见表7.3-1。
表7.3-1 现有环保问题整治措施实施时限
序号 | 现有环保问题 | 整治措施 | 整治时限 | 整治效果 |
1 | 原料产品堆场未按环评要求设置挡风墙,同时设置喷水设施 | 原料产品堆场按环评要求设置挡风墙,同时设置喷水设施 | 2021.08 | 满足原环评要求 |
2 | 电极三角区、加料口、出料口未按环评要求进行密闭 | 电极三角区、加料口、出料口按环评要求进行密闭 | 2021.08 | 满足原环评要求 |
3 | 原料在配料过程产生粉尘,未采用环评要求的电子称量和封闭系统 | 在原料在配料过程采用环评要求的电子称量和封闭系统 | 2021.08 | 满足原环评要求 |
4 | 部分固体废物储存不符合相应要求,扒渣固废露天堆放至厂房外空地上 | 项目固废应设置包含分区并考虑储存能力、储存周期的固废专用暂存地点 | 2021.08 | 满足原环评要求 |
5 | 自行监测方案不完善 | 按照《排污单位自行监测技术指南 总则》(HJ989-2017)、《排污许可证申请与核发技术规范 铁合金、电解锰工业》规定的频次进行定期监测 | 2021.08 | 满足《排污许可证申请与核发技术规范 铁合金、电解锰工业》、《排污单位自行监测技术指南 总则》(HJ989-2017) |
本次后评价建议企业在后续运营中还应加强以下管理措施:
⑴加强对各项环保设施的日常维护和管理、确保其稳定运行,使污染物长期、稳定达标排放。
⑵认真落实各项事故应急处理措施,及时开展应急演练,避免污染事故发生。
⑶按照要求定期对污染源和周边环境质量进行监测并进行信息公开。
⑷进一步加强环境管理,持续改进各项环境保护工作;严格落实排污许可制度,按证排污。
以上管理措施所需成本均在公司日常运营成本中分担,本次后评价不再单独提出环保投资。
该项目于2004年11月12日取得《关于内蒙古太西煤集团年产30×104吨铁合金项目立项的环境保护审查意见》内环字[2004]419号;2004年3月包钢集团设计研究院编制了《内蒙古太西煤集团年产30×104吨铁合金项目可行性研究报告》。
2006年12月中国冶金建设集团包头钢铁设计研究总院完成了《内蒙古太西煤集团常山多元合金有限公司年产30×104吨铁合金一期项目环境影响报告书》;2007年6月取得内蒙古自治区环境保护局(内环审〔2007〕98号)《关于内蒙古太西煤集团常山多元合金有限公司年产30×104吨铁合金一期项目环境影响报告书的批复》。
内蒙古太西煤集团常山多元合金有限公司年产30×104吨铁合金项目,于2004年开始建设,分期建设,工程建设符合国家《铁合金行业准入条件》和国家有关法律、法规的规定,符合国家“西部大开发”战略,对内蒙西部地区经济发展具有积极的促进作用。
该工程2004年开工建设,到2005年初完成4×12500kVA铁合金电炉的建设,并已投产运行,到2006年底,另4台12500kVA铁合金电炉已建成,2011年11月内蒙古自治区环境监测中心站编制了《内蒙古太西煤集团常山多元合金有限公司年产30×104吨铁合金一期项目验收监测报告》。
本工程采取的环境保护措施与原环境影响评价内容相比,部分结合项目实际建设情况有所调整。通过对建设项目污染源监测统计及分析可知,各污染物排放均符合相关标准,未出现超标情况。
与原环评相比,工程在建设过程中未发生重大变动。企业落实了环评报告中的环保措施。根据原环境影响评价并结合污染源监测结果对建设项目运营期污染物产生、治理及排放情况进行统计,污染物能够稳定达标排放。工程投运以来,未发生环境风险事故。
由于评价范围内无地表水体,阿拉善右旗用水主要来自地下水。因此项目原环评未对地下水环境质量进行评价。
本次后评价亦无法对项目附近地表水体进行评价
将原环评阶段和现状监测水质对比可知,项目区地下水水质监测结果有所变化,原环评阶段溶解性总固体等部分盐类监测因子超标,总硬度、氟化物接近标准,现状监测结果中溶解性总固体有所减少,总硬度、氟化物比环评阶段监测结果有所小幅度增加,这些盐类物质增加,可能与本底值较高及项目运行年限较长有关。其余项目均符合地下水(GBT14848-2017)Ⅲ类标准水质要求
由于项目周围环境空气评价范围内无敏感点,原环评监测的厂址处变为污染物排放监测点,因此本次后评价环境空气质量现状评价引用阿拉善盟国控点数据中的监测数据。监测期间本项目正常运行,监测结果能代表现状环境质量,引用数据有效。
阿拉善盟2018年SO2、NO2、PM10、PM2.5年均浓度分别为10 ug/m3、11 ug/m3、69 ug/m3、34 ug/m3;CO 24小时平均第95百分位数为0.9mg/m3,O3日最大8小时平均第90百分位数为163 ug/m3;超过《环境空气质量标准》(GB3095-2012)中二级标准限值的污染物为O3。
从噪声监测结果来看,工程运营期厂界周围噪声监测值昼间在40.8~56.7dB(A)之间,夜间在38.8~49.4B(A)之间,昼夜间噪声虽有增大但均能够满足《工业企业厂界环境噪声排放标准》(GB12348-2008)中的3类噪声标准限值要求。
原环评中未对土壤环境质量进行评价,且本次后评价根据《环境影响评价技术导则 土壤环境(试行)》(HJ964-2018)土壤污染影响型项目环境影响评价工作等级划分原则,确定本项目土壤环境影响评价工作为可不开展土壤环境影响评价工作。因此本次后评价未对土壤环境现状进行监测与评价。
根据本次后评价监测结果:项目生产废水冲厕后排入化粪池与生活污水一起经化粪池处理后,出水水质因子完全可以满足《铁合金工业污染物排放标准》(GB28666-2012)现有企业标准要求。故项目废水处理措施可行且有效。
(1)有组织废气
从废气污染物监测结果看:矿热炉废气排气筒(1#)颗粒物浓度满足《铁合金工业污染物排放标准》(GB28666-2012)中现有企业标准,项目对颗粒物处理效率为99.87%;SO2及氟化物排放浓度满足《工业炉窑大气污染物排放标准》GB9078-1996表4中钢铁烧结冶炼二级标准,NOx满足《大气污染物综合排放标准》GB16297-1996新污染源表2二级标准。
可见,有组织废气排放环节废气治理设施均有效。
(2)无组织废气
从监测结果来看,项目所在厂界特征污染因子排放浓度满足《铁合金工业污染物排放标准》(GB28666-2012)表7厂界无组织限值。可见,项目采取的无组织污染防治措施可使厂界无组织废气污染物达标排放。
硅铁生产的主要噪声源为铁合金电炉运转、除尘尘器风机、除尘器电机、冷却塔、水泵等设备产生的噪声。从噪声类型看主要是空气动力性噪声和机械性噪声。根据本次后评价监测可知项目厂界周围噪声满足《工业企业厂界环境噪声排放标准》(GB12348-2008)中的3类噪声标准限值要求,说明本项目噪声治理措施可行。
本项目产生的固体废物主要为电炉冶炼产生的微量废渣——硅渣、电炉烟气除尘回收的硅粉、电炉产生的废电极和生活垃圾。其中工业固废均属于一般工业固体废物。
废渣为块状、无粉末,80%回用回炉、20%外销;炉烟气除尘回收的硅粉经加密处理后,回用于生产;电炉产生的废电极回收利用,修补铁水包,流槽等;生活垃圾送当地垃圾处理厂集中处置。
各类固体废物均合理处置。
企业制定了《环境应急预案》,内容包括应急求援组织机构、职责、应急响应、应急程序、防毒、防火知识等。废气、废水污染事故排放均有完善的风险防范措施。该项目在废渣堆场和原料成品堆场地面均做有硬化处理,风险物质硅铁的出售和运输均交由有该相关资质的单位和企业操作运行。
工程投运以来,未发生环境风险事故,可见环境风险防范措施可行有效。
工程实际运行中:一期项目的给水系统包括生产、生活给水系统、矿热炉及变压器循环水系统等。该项目生产用水重复利用率95.8%。矿热炉及变压器冷却循环水系统无生产废水产生,生活污水经化粪池处理后与附近电厂废水一并处理后回用于绿化、泼洒等,不外排。
项目地表水环境影响预测符合原环评结论。
根据本次后评价引用的环境空气质量数据可知,阿拉善盟2018年SO2、NO2、PM10、PM2.5年均浓度分别为10 ug/m3、11 ug/m3、69 ug/m3、34 ug/m3;CO 24小时平均第95百分位数为0.9mg/m3,O3日最大8小时平均第90百分位数为163 ug/m3;超过《环境空气质量标准》(GB3095-2012)中二级标准限值的污染物为O3。
从区域角度看,自项目运行以来区域实际影响的污染源发生了一定的变化,致使环境空气中的污染物变化情况不同。
单从本项目来看,本项目各污染物排放量均比环评批复的总量小,对区域污染物的贡献值也相应减少,且本项目不排放O3且排放的污染物与引起O3二次污染的关系不大,因此阿拉善盟区域O3发生超标现象与本项目运行关系较小,说明本项目大气污染物的排放对区域大气环境的影响非常有限。
可见项目废气排放对周围环境的影响较小,可被周围环境所接受,符合环评预测结论。
原环评未对地下水进行影响预测,而根据《内蒙古太西煤集团常山多元合金有限公司年产30×104吨铁合金一期项目环境影响报告书》中对地下水监测的的14项污染因子除溶解性总固体超标外,总硬度、氟化物等接近标准,其余项目均符合地下水(GB/T14848-2017)Ⅲ类标准水质要求。溶解性总固体超标、总硬度、氟化物等接近标准可能是由于当地地质条件造成的。工程区地下水和本项目有关的污染因子均满足《地下水质量标准》(GB/T14848-2017)中III类标准,出现超标的因子为氟化物、硫酸盐、总硬度、氯化物、溶解性总固体。
硫酸盐、氯化物不是本项目特征因子,超标原因应与本项目无直接关系;总硬度、溶解性总固体不是本项目特征因子,超标原因可能是项目区本底值较高;氟化物出现超标说明项目的运营对区域地下水有一定的影响,由于项目已运行多年,相对其运行年限来看,项目的运行对地下水的影响比较有限。
根据本次后评价对项目厂界噪声监测可知,工程采取噪声控制措施后,厂界噪声均满足《工业企业厂界环境噪声排放标准》(GB12348-2008)中的3类标准限值要求,符合原环评预测结论。
本项目产生的固体废物主要为电炉冶炼产生的微量废渣——硅渣、电炉烟气除尘回收的硅粉、电炉产生的废电极和生活垃圾。其中工业固废均属于一般工业固体废物。
废渣为块状、无粉末,80%回用回炉、20%外销,产生量为98.3t/a;炉烟气除尘回收的硅粉经加密处理后,回用于生产,产生量为200t/a;电炉产生的废电极回收利用,修补铁水包,流槽等,产生量为18t/a;生活垃圾送当地垃圾处理厂集中处置,产生量为5.06t/a。
因此,项目产生的固体废物均合理处理处置,对环境的影响很小,与环评结论相符。
原环评未对土壤环境影响进行预测,根据《环境影响评价技术导则 土壤环境(试行)》(HJ964-2018)及项目排放的污染物主要为颗粒物及SO2、NOx可知项目为可不开展土壤环境影响评价工作。说明本项目运营期对土壤环境影响较小。
内蒙古太西煤集团常山多元合金有限公司年产30×104吨铁合金一期项目与原环评建设基本内容一致,工程采取的环境保护措施与原环境影响评价基本相符,根据污染源监测结果可知,本项目运营期废气、废水、噪声、固体废物污染防治措施切实有效,污染物排放均满足国家及地方相关标准要求,因此,本环境影响后评价认为,内蒙古太西煤集团常山多元合金有限公司年产30×104吨铁合金一期项目现状环境影响可接受。
建议原料产品堆场采取完善的防风抑尘措施,减少无组织粉尘排放,同事加强对各项环保设施的日常维护和管理、确保其稳定运行,使污染物长期、稳定达标排放;严格落实排污许可制度,按证排污。
